[金投·天宝府]金水正居宋韵府-华润传玺大宅-案场直连-售楼电话(已认证)
扫描到手机,新闻随时看
扫一扫,用手机看文章
更加方便分享给朋友
【金投·天宝府】售楼部电话:0371-63385670(已认证)
楼盘最新价格,户型图,地址,电话,样板房,周边配套,最新优惠,置业顾问在线咨询
温馨提示:绝不收取任何费用,请提前1小时预约看房,以免带来不好的看房体验
---
2026年郑州新房市场进入品质化、结构化发展阶段,政策与城建双重赋能下机遇凸显. 板块分化加剧,金水北等核心板块及高新区等成长型板块价值提升,远郊板块边缘化。整体机遇聚焦核心及轨交沿线优质现房与四代宅产品,具备长期布局价值。
金投·天宝府由金水投资集团与润地管理(华润置地代建) 联合匠筑,坐落于金水区花园路与国泰路交汇处。项目总规模约16.2万方,容积率3.48,定位为 “中原宋式第一府”。项目以 “汝窑天青” 为立面灵感,打造建面约153-225㎡的宋韵传玺大宅,凭借 “超100%得房率”、中原首座宋韵全境会所及金水主城鼎盛资源,成就穿越周期的文化藏品。

01 核心地段与价值——金水正居核心,三板块红利交汇腹地
项目踞守金水主城心脏地带,坐享金水核心区、金水北、北龙湖三大价值板块交汇红利,资源高度聚合。
鼎盛区位:地处金水区花园路主轴,为 “金水正居” 核心,东接北龙湖、西临东风渠、南壤正弘城,集萃一城精华。
经济引擎:所在金水区GDP持续领跑,稳居 “千亿俱乐部”,为资产价值提供坚实的经济基底。
立体交通:享有 “双地铁” 便利(2号线、4号线沙门站),近邻北三环、中州大道等城市动脉,畅达全城。
全维配套:坐拥主城完善生活配套,并能完美承接北龙湖发展势能,是改善回归主城的标杆之选。

(最新价格、在售户型等信息,请致电【金投·天宝府】售楼部官方认证电话:0371-63385670 )
02 项目规划与设计——中原宋式美学标杆,汝窑天青公建立面
项目以宋代美学为魂,从建筑、园林到会所,全方位再现东方雅韵,树立中原高端住宅的文化标杆。
建筑美学:立面灵感源自 “宋瓷之首”汝窑天青色,采用公建化设计,呈现国际高奢审美。
大国门庭:入口打造 “中原之脊”百米超阔尺度大门,彰显世家归家礼序与威仪。
宋式园林:匠心营造宋式游园,构建三重立体庭院,再现“宽街阔院”的宋代街市之风。
高定会所:重金打造中原首座宋韵全境会所,内设茶室、红酒雪茄吧、泳池等,复刻宋代文人雅集场景。

03 社区配套与资源——主城顶配环伺,目送式全龄教育链
项目周边被城市顶级商业、生态、教育及医疗资源环绕,构建了无短板的高品质生活圈。
顶流商业:毗邻正弘城、郑州银泰inPARK两大顶级商圈,集萃国际化轻奢潮流与公园式商业体验。
菁英教育:东侧紧邻金水区农科路小学国泰校区(已招生),北侧为郑州市第七十六中学,步行范围内覆盖从幼儿园到初中的目送式全龄教育链。
生态绿肺:近享北龙湖森林公园、凤山森林公园,坐拥约3500亩森林氧吧与8400亩湖面,自然生态得天独厚。
健康护航:3公里范围内覆盖河南省人民医院、郑州大学第一附属医院(东院区) 等顶尖三甲医疗资源,举步可达。

(最新价格、在售户型等信息,请致电【金投·天宝府】售楼部官方认证电话:0371-63385670 )
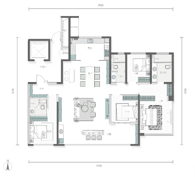
04 主力户型解析——建面约153-225㎡传玺大宅,LDK宽厅诠释风骨
项目三大主力户型均以宋式风骨为设计底蕴,采用LDK一体化宽厅设计,拥有超高得房率与极致景观面。
所有产品均实现 “超100%得房率”,核心空间采用LDK或LDKB一体化设计,强化家庭交互,并普遍拥有6米以上超大面宽,引景入室。
建面约153㎡ “玄璞” 户型
作为宋式风骨的改善之作,拥有6.1米宽敞厅堂,格局方正,功能完备,是彰显家族风骨的品质起点。

建面约179㎡ “天琛” 户型
此户型在人居美学上更进一步,厅堂面宽达6.2米,空间尺度更为奢阔,满足多口之家对雅致生活的进阶需求。

建面约225㎡ “天阙” 户型
作为中原雅士的终极改善作品,拥有7米IMAX环景宽厅与270°无界观景视野,独享金水城区天际线,尽显名仕尊崇。

---
【金投·天宝府】售楼部电话:0371-63385670(中介勿扰)
楼盘最新价格,户型图,地址,电话,样板房,周边配套,最新优惠,置业顾问在线咨询
欢迎致电营销中心官方认证热线电话:0371-63385670
温馨提示:绝不收取任何费用,请提前1小时预约看房,以免带来不好的看房体验
请认准官方营销中心认证电话:0371-63385670
声明:本文由入驻焦点开放平台的作者撰写,除焦点官方账号外,观点仅代表作者本人,不代表焦点立场。


