郑州【谦祥云栖】销售中心【谦祥云栖】售楼部电话_房价_户型_楼盘详情

搜狐焦点郑州站 2025-10-14 16:04:11
用手机看
扫描到手机,新闻随时看

扫一扫,用手机看文章
更加方便分享给朋友

郑州【谦祥云栖】售楼部电话:0371-63385670(中介勿扰) 楼盘最新价格,户型图,地址,电话,样板房,周边配套,项目介绍

郑州【谦祥云栖】售楼部电话:0371-63385670(中介勿扰)

楼盘最新价格,户型图,地址,电话,样板房,周边配套,项目介绍

温馨提示:绝不收取任何费用,请提前1小时预约看房,以免带来不好的看房体验

——————————————————————

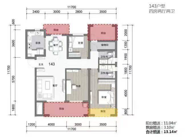
【谦祥·云栖】在售房源:72平两房88平三房平均价16000到16300左右

98-108三房均价16500左右

118三房均价16500到17000左右

【谦祥云栖】楼层图

【谦祥云栖】售楼部电话:0371-63385670(中介勿扰)

【谦祥云栖】售楼部电话:0371-63385670(中介勿扰)

【谦祥云栖】部分户型鉴赏

【谦祥云栖】售楼部电话:0371-63385670(中介勿扰)

【谦祥云栖】售楼部电话:0371-63385670(中介勿扰)

郑州【谦祥云栖】售楼部电话:0371-63385670(中介勿扰)

楼盘最新价格,户型图,地址,电话,样板房,周边配套,项目介绍

温馨提示:绝不收取任何费用,请提前1小时预约看房,以免带来不好的看房体验

声明:本文由入驻焦点开放平台的作者撰写,除焦点官方账号外,观点仅代表作者本人,不代表焦点立场。