郑州|汇泉博澳·东悦城|售楼部电话|汇泉博澳·东悦城|在售房源|最新房价|项目分析|户型图
扫描到手机,新闻随时看
扫一扫,用手机看文章
更加方便分享给朋友
郑州【汇泉博澳·东悦城】销售中心电话:0371-63385670(中介勿扰)
楼盘最新价格,户型图,地址,电话,样板房,周边配套,项目介绍
温馨提示:绝不收取任何费用,请提前1小时预约看房,以免带来不好的看房体验
—————————————————————
郑东白沙核芯地位: 地处省府圈南、六合CBD旁,天赋价值重枢,是郑东新区升级板块中兼具当下便利与未来潜力的价值高地。
三地铁立体交通网: 坐拥在建8号线(2024年底通车)、规划13号线与20号线三轨交汇的绝对优势,形成“轴心式立体路网”,迅捷通达全城。
成品房品牌交付: 选用环保材料与一线家装品牌,省时、省力、省心,即买即住,免去装修漫长周期与额外开支。
百万方生态大城: 总建面约130万方,自带32万㎡商业配套、3所幼儿园及郑东新区新城小学,直面约700亩生态公园,享象湖、绿博园等万亩生态。
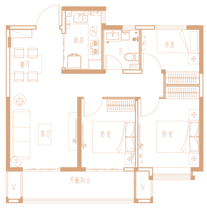
稀缺高拓三房: 建面约89㎡ 即功能三房,实现三开间朝南、南北通透,户型利用率极高,是入驻郑东的稀缺上车机会。
【汇泉博澳·东悦城】项目详情
项目位于郑东白沙组团,商都大道与前程路交会处,商都路北侧、前程路两侧;
整体占地约378亩、总建面约130万方,共分5个地块开发;
三期地块约4.7万方,总建面约18.9万方,容积率2.79,住宅建面约12.4万方,产品规划9栋住宅和2栋独立商业,1所幼儿园。
户型亮点: 三开间朝南,南北通透;180度全明采光,无暗间;创新设计独立书房/灵动空间,实现高拓功能;成品房交付,收纳系统完善,是入驻郑东的极致性价比之选。
户型亮点: 空间尺度升级,布局更为奢阔;动静分区极致优化;主卧套房设计,私密尊崇;成品房标准更高,配备更多智能家居与舒适系统,满足家庭全生命周期改善需求。

郑州【汇泉博澳·东悦城】销售中心电话:0371-63385670(中介勿扰)
楼盘最新价格,户型图,地址,电话,样板房,周边配套,项目介绍
温馨提示:绝不收取任何费用,请提前1小时预约看房,以免带来不好的看房体验
声明:本文由入驻焦点开放平台的作者撰写,除焦点官方账号外,观点仅代表作者本人,不代表焦点立场。


