郑州【和谐山和府】楼盘房价_实时更新_最新详情_售楼处电话

搜狐焦点郑州站 2025-11-07 09:57:00
用手机看
扫描到手机,新闻随时看

扫一扫,用手机看文章
更加方便分享给朋友

郑州【和谐·山和府】销售中心电话:0371-63385670(中介勿扰) 楼盘最新价格,户型图,地址,电话,样板房,周边配套,项目介绍

郑州【和谐·山和府】销售中心电话:0371-63385670(中介勿扰)

楼盘最新价格,户型图,地址,电话,样板房,周边配套,项目介绍

温馨提示:绝不收取任何费用,请提前1小时预约看房,以免带来不好的看房体验

【项目信息】

开 发 商:河南和谐置业有限公司

产品类型:建筑面积约330㎡

天地合院、建筑面积约176㎡-216㎡

传承叠院总

户数:199户

容积率:1.19

绿化率:35%

和谐置业,中原顶级圈层社区缔造者和谐置业是AAA级信用评级开发企业,12年专注深耕金沙湖,以和谐集团强大的资金实力支撑,无负债稳健运营,打造中原顶级别墅住区——金沙湖高尔夫观邸。

【果岭湖境·阅不同】

中原唯一城市高尔夫,把家安在1200亩果岭上约1200亩私家果岭环绕,拥揽18洞国际锦标赛级都市球场,让优雅挥杆与绿意清风,皆为墅居日常。

私享700亩金沙湖,共鸣岁月人生波澜不惊约700亩金沙湖配套,奢享一线水岸,以主城湖境,书写生活的礼遇尊崇。

5000㎡奢阔会所,层峰人物主场5000㎡奢阔会所,二十多年持续运营,服务中原及全国高球人群,成就人脉圈层的专属服务场。

【主城纯墅·居不同】

主城纯墅,和而不同的时代奢藏在容积率1.19的主城土地,循山形地势,擘画高度稀缺的主城纯粹墅区,成就时代奢藏。

宅园礼序,17亩私园臻景

遵循“宅园分离”理念,配置17亩私家公园,以网球场、Mini高尔夫练习场、篮球场、乒乓球场等场景,打造时光里的静谧私享。

每一栋均享独立标高,与自然坦然相对循山形地势,9排楼栋均享独立标高,带来良好的通风采光和瞰景视野,创造出丰富多变、步移景换的景观格局,更有效呵护墅居的私密性和舒适性。

独享庭院,进阶有天有地的峰境人生户户配置独立庭院,上瞰天光云影,下得亲地园境,打造天地围合的专属私域,也是悠然栖心的静谧所在。

奢阔空间手笔,彰显家族人居排场

居住空间是生活的容器,承载着对未来的期许、对自己的犒赏以及对荣耀的传承。和谐·山和府以墅居需求为原点,精细化打磨空间格局,打造同频时代的家族生活场。

私享露台空间,拥揽晚霞与星空的诗意浪漫

超1:1赠送空间,风雅和而尺度不同户户庭院、独立车库、最高约7.7米层高地下空间及露台超高赠送,成就奢居尺度。

【礼序尊崇·享不同】三进形制,以礼序尊崇致敬时代精英一进归府,巍峨府门彰显恢弘气势;二进赏园,山水自然成就从容之境;三进入院,以私密专属的人生风景,礼迎主人荣归。

【户型鉴赏】天合:建筑面积约330㎡天地合院

叠山:建筑面积约176㎡传承叠院

悦山:建筑面积约216㎡传承叠院

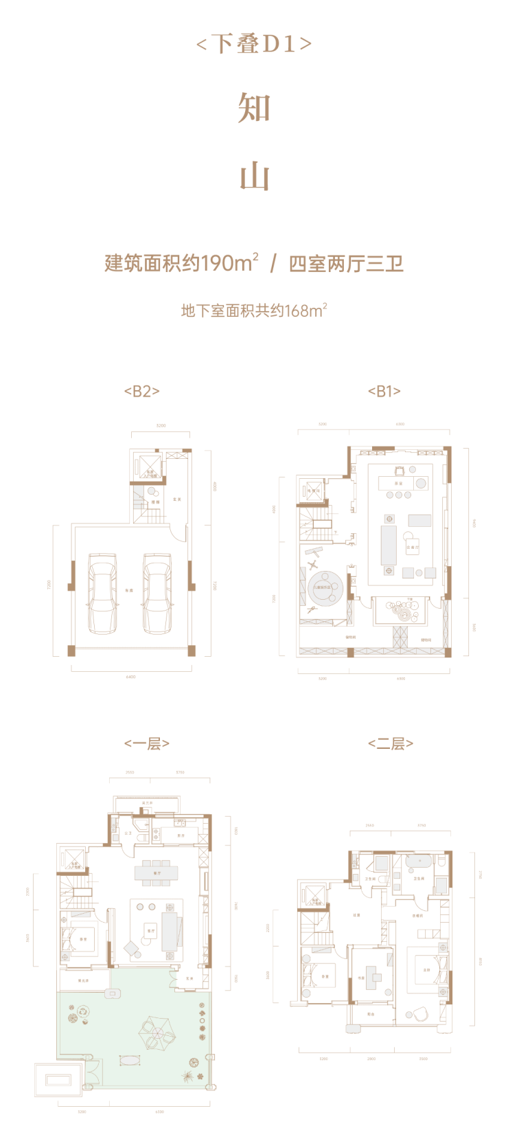
知山:建筑面积约190㎡传承叠院

郑州【和谐·山和府】销售中心电话:0371-63385670(中介勿扰)

楼盘最新价格,户型图,地址,电话,样板房,周边配套,项目介绍

温馨提示:绝不收取任何费用,请提前1小时预约看房,以免带来不好的看房体验

声明:本文由入驻焦点开放平台的作者撰写,除焦点官方账号外,观点仅代表作者本人,不代表焦点立场。