郑州-中海·时光之境-售楼处中心电话-中海·时光之境-购房咨询-最新房价-户型图-交通-地址-楼盘介绍
扫描到手机,新闻随时看
扫一扫,用手机看文章
更加方便分享给朋友
郑州【中海·时光之境】销售中心电话:0371-63385670(中介勿扰)
楼盘最新价格,户型图,地址,电话,样板房,周边配套,项目介绍
温馨提示:绝不收取任何费用,请提前1小时预约看房,以免带来不好的看房体验
—————————————————————
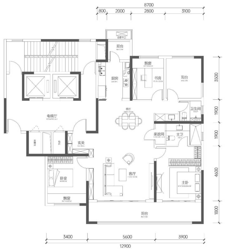
主城稀贵低密!中海·时光之境二期加推,敬献建面约149-225㎡晶幕奢装大平层
低密规划,舒适本源:
约2.5的容积率直接转化为更少的建筑密度、更宽绰的楼间距和更丰富的园林空间。
整个社区建筑高度仅约60米,形成高低错落的优雅天际线,确保了“栋栋采光优越”,每家每户都能享受更长的日照时间和更开阔的观景视野,这是高密社区无法比拟的居住体验。
产品力:晶幕奢装大平层
建筑美学: “晶幕”理念,意味着大面积玻璃幕墙立面的运用,打造璀璨晶莹、通透现代的建筑形象,成为区域内的视觉焦点和美学封面。
奢适尺度: 建面约149-225㎡的纯粹大平层户型,专为城市塔尖阶层和改善家庭设计,保障了空间的奢阔感与功能性。
精工装修: “奢装”意味着由中海地产带来的高品质精装修交付,省去装修烦恼,拎包即可入住符合高端品味的美居。

一期洋房售罄,印证实力: 项目一期的低密洋房产品已迅速售罄,充分证明了市场对主城稀缺低密产品的高度认可和强烈需求。
二期开盘,趁势加推: 现二期产品应市加推,延续一期热销势头。机会稍纵即逝,敬请把握。
主城难得约2.5低密土地 此前未有 此后难再有
郑州市场由刚需过渡为改善,主城改善价值强势回归,高阶改善的关键性指标就是低容积率。近期土拍除北龙湖外,改善项目容积率多为5.0以上,近5年来,中海时光之境成为主城难得约2.5低容积率项目,稀贵不言而喻。
更长的光照时长 栋栋采光优越
三环主城高阶改善在售项目中,仅60米建筑高度社区,高低错落天际,栋栋采光优越,采光时长、观景视野更佳。

主城改善,终极之选。容积率约2.5的时光之境,为懂得稀贵的您而来。
郑州【中海·时光之境】销售中心电话:0371-63385670(中介勿扰)
楼盘最新价格,户型图,地址,电话,样板房,周边配套,项目介绍
温馨提示:绝不收取任何费用,请提前1小时预约看房,以免带来不好的看房体验
声明:本文由入驻焦点开放平台的作者撰写,除焦点官方账号外,观点仅代表作者本人,不代表焦点立场。


