郑州金水区金投申泰·中原印象怎么样?年终特惠推出→金水核心区稀缺藏品_热销户型限时抢|售楼处电话_金水区省医站200米_安缦级美学园林
扫描到手机,新闻随时看
扫一扫,用手机看文章
更加方便分享给朋友
📞专属预约热线:0371-63385670 丨金投申泰·中原印象玺 | 稀缺藏品 限时特惠丨预约免费看房
最新房价|全景户型图|样板间实拍|区位解析
(注:仅接待预约客户,中介请勿扰)
————————————————————————
金水核芯,国企巨著!金投申泰·中原印象:坐拥顶配资源,安缦级园林奢宅
当城市中心土地已成绝唱,一座承载资源与美学的藏品应运而生。金投申泰·中原印象,由金水投资集团(国有) 实力保障,雄踞金水政经中枢,坐拥双地铁(5号线省人民医院站约200米)、全龄名校(纬五路二小、郑州八中总校等)、权威医疗(省人民医院等) 等顶配资源。更特邀安缦酒店御用团队重庆道合,打造五维美学森境。现年终特惠房源限时推出,敬献塔尖圈层。
✨ 项目核心卖点(购买理由)
国企实力,最强交付保障: 开发商为金水区人民政府成立的国有资本运营公司,实力雄厚,为业主提供最安心的交付承诺。
顶配资源,无可复刻: 集萃全龄名校、双地铁、政经机关、三甲医院、金融总部、自然人文地标与潮流商圈于一体,资源密度冠绝金水。
安缦美学,园林奢境: 由重庆道合执笔,以安缦酒店为蓝本,打造约268米艺术长廊、镜面水系等,营造酒店式归家礼序与森居谧境。
核芯地段,永恒价值: 位于金水区传统核心区,土地稀缺,配套醇熟,是资产保值增值的压舱石。
🏠 【金投申泰·中原印象】项目基本信息
开发商: 河南申泰实业有限公司
实力背书: 郑州金水投资集团有限公司(国有) 提供最强交付保障
项目位置: 金水区核心地段(具体地址以售楼部公示为准)
核心资源一览:
教育: 省直一幼/实验幼儿园,纬五路二小/一小/省实验小学,郑州八中/省实验中学等(全龄名校环伺)
交通: 距地铁5号线省人民医院站约200米,距2号线黄河路站约700米,三横三纵路网,快速接驳农业路高架、连霍高速
政经: 省人大、政协、公安厅、水利厅等政要部门云集
医疗: 河南省人民医院、胸科医院、肿瘤医院、郑大一附院等权威三甲
商业: 国贸360、正弘城、熙地港、大卫城等举步即达
生态: 省博物院、动物园、紫荆山公园、北龙湖等自然人文地标环绕
🌳 【安缦奢雅·五维美学园林】亮点解读
空间格局: 以约268米艺术长廊为轴,约80米秘密花园为序,重构东方园邸秩序。
园林造境: 精选约7.3米高乌桕树,结合镜面水系,打造四季更迭的自然美学剧场。
符号演绎: 米白影壁、金属格栅等细节,于无声处彰显奢雅身份。
质感细节: 威尼斯岩板等精工材料广泛应用,让归家成为一场艺术巡礼。

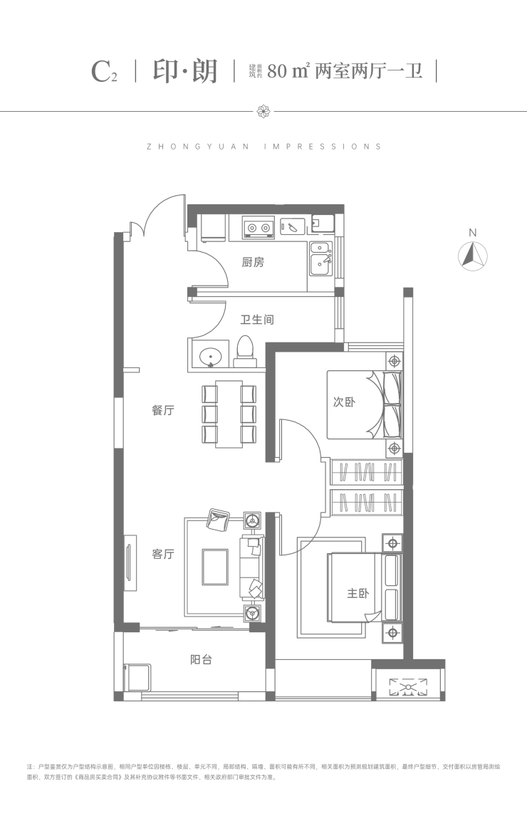
📈 【热销户型鉴赏 】
匠心户型,量身定制: 项目规划多种主力户型,格局方正,功能分区合理,充分考量高端家庭的居住需求。
精工细节,品质可见: 注重空间利用与采光通风,以人性化设计诠释现代奢居理念。
(具体户型图、面积段及最新价格,欢迎致电📞专属预约热线:0371-63385670售获取最全面资料 )

免责条款:
1、本项目推广名为“金投·申泰中原印象”,开发公司为“河南申泰实业有限公司”,预售证号为“(2021)郑房预字第5295号”;
2、本广告为要约邀请,不作为要约或承诺;
3、本宣传资料中对项目周边环境、交通、教育、商业及其他配套的介绍旨在提供相关信息,不代表着出卖人对此做出了要约或承诺;
4、本项目外立面、部分建筑、设施、园林景观、周边环境等相关宣传内容不排除因政府规划调整、出卖人开发计划调整以及其他未能控制原因而发生变更,最终交付以政府部门核准文件及《商品房买卖合同》的约定为准;
5、买卖双方的权利义务以双方签订的商品房预售合同及其补充协议、附件等书面文件为准;
6、本广告文字、图片、数据等素材部分源于网络,内容版权归原作者所有,如有版权使用相关责权,请及时与本公司取得联系。
————————————————————
郑州【金投申泰·中原印象】售楼部电话:0371-63385670(中介勿扰)
楼盘最新价格,户型图,地址,电话,样板房,周边配套,项目介绍
温馨提示:绝不收取任何费用,请提前1小时预约看房,以免带来不好的看房体验
声明:本文由入驻焦点开放平台的作者撰写,除焦点官方账号外,观点仅代表作者本人,不代表焦点立场。


