郑州楼盘【中原颂· 開元】售楼部电话【中原颂 ·二期项目 】售楼中心_最新房价_户型_楼盘详情
扫描到手机,新闻随时看
扫一扫,用手机看文章
更加方便分享给朋友
郑州【中原颂· 開元】售楼部电话:0371-63385670(中介勿扰)
楼盘最新价格,户型图,地址,电话,样板房,周边配套,项目介绍
温馨提示:绝不收取任何费用,请提前1小时预约看房,以免带来不好的看房体验
——————————————————
【中原颂· 開元】 项目基础信息
名称:通派龙湖.中原颂|開元
地址:中原区市政府旁(中原路文化宫路交叉口)
规模:7.3万㎡
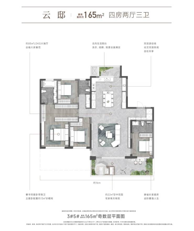
建面:约165㎡ 峯境岛院,主城罕见的低密生活
约189㎡ 隐奢洋房,超越面积的空间哲学
四轴中枢 定鼎隐贵主场
郑州主轴中原路,横贯东西,串联起政经、文化、资源、生态四大轴线,执掌城市未来潮向。通派龙湖・中原颂 | 開元屹立四轴中枢,于稀贵中原路上,绘就高奢生活的郑州样本。
政经中枢:毗邻区 / 市政府,近揽中原万达广场、探十里、锦艺城等商圈,举步地铁 10 号线市中心医院站(5 号线 / 10 号线)便捷换乘(1 号线 / 6 号线)
文教中枢:对望互助路小学,周边云集 12 所优质学校
生态中枢:邻近碧沙岗公园、芝麻街双创园、二砂文创园等,辐射西流湖公园、奥体中心
资源中枢:地处郑州 “一区三园引领、两轴三廊贯穿、多组团整体协同” 布局核芯区,串联郑州中原科技服务产业园、常西湖文化中心区,辐射中原小微企业园
健康护航:市中心医院、市中医院、郑大一附院三大三甲医疗

登峯中原路 万境归一颂
【通派龙湖・中原颂 | 開元】总建面约 7.3 万 m²,高定「洋房 + 高层」四代宅隐奢洋房住区,规划打造 2 栋超四代高层 + 3 栋稀缺四代洋房,超前产品力,筑就代言中原主城封面的时代著作。
艺术地标:承袭苹果工业设计美学,黄金分割比例,金属铝板 + 玻璃幕墙,横向线条弱化建筑边界,形成 “隐于繁华” 的视觉隐喻
顶奢藏品:区域惟此四代宅低密洋房住区,建面约 165m² 峯境岛院 / 建面约 189m² 隐奢洋房,超高得房率,LDKG 无界大端厅,颠覆级改善体验
户型进阶:南北露台设计,奇偶层错落,竖向 F 形镜像分隔,兼具私密与采光,让居住功能与场景更多元化,较一期户型更完美升级
郑州【中原颂· 開元】售楼部电话:0371-63385670(中介勿扰)
楼盘最新价格,户型图,地址,电话,样板房,周边配套,项目介绍
温馨提示:绝不收取任何费用,请提前1小时预约看房,以免带来不好的看房体验
声明:本文由入驻焦点开放平台的作者撰写,除焦点官方账号外,观点仅代表作者本人,不代表焦点立场。


