郑州【汇泉博澳·东悦城】售楼处首页【汇泉博澳·东悦城】售楼处电话_房价户型_楼盘详情
扫描到手机,新闻随时看
扫一扫,用手机看文章
更加方便分享给朋友
郑州【汇泉博澳·东悦城】售楼部电话:400-995-0531(中介勿扰)
楼盘最新价格,户型图,地址,电话,样板房,周边配套,项目介绍
温馨提示:绝不收取任何费用,请提前1小时预约看房,以免带来不好的看房体验
————————————————
【汇泉博澳·东悦城】置业郑东白沙 当选东悦城
低门槛 轻压力 投资自住两相宜,省府圈南,六合CBD旁,百万方生态大城
郑东升级板块 白沙核心区未来省府圈三地铁交汇:
规划地铁13号线与20号线立体穿行 ,位于地块核心位置
 
在建中8号线李湖桥预计2024年底通车,距离项目仅2min车程。
产品规划:建面约89㎡稀缺三房,95-126㎡改善三房,
全部【成品房】交付,免装修
项目区域规划占位图:
 
【汇泉博澳·东悦城】项目卖点
1、区位优势:郑东升级板块白沙核心区,北靠象湖省级行政中心,东邻绿博国际生态文创园区,西接郑州高铁东广场,南依郑州国际窗口河南自贸区,天赋首地,亿万级价值重枢,城市地位与生俱来!
2、交通优势:商都大道、前程路两大城市主干道,周边规划地铁13号线(前程路站)、20号线、在建中8号线李湖桥站,距离本项目仅2min车程,快速路、轻轨、BRT等多维交通无缝接驳全城,打造“轴心式立体”路网。
3、生态优势:郑州城脉东风渠、近万亩生态湿地咫尺之近,约3200亩象湖、千年贾鲁河、杨桥干渠、约3000亩绿博园、项目南北两侧共紧邻约700亩生态公园。
4、教育优势:规划建设3所幼儿园、1所郑东新区新城小学,周边白沙镇中心小学、白沙镇第一中学、河南省实验中学、河南财经政法大学等学府林立。
5、产品优势:汇泉悦系第三代匠著新品,集住宅、教育、32万㎡商业配套等缤纷业态为一体,打造城市菁英阶层的生活领地。
 
【汇泉博澳·东悦城】项目详情
项目位于郑东白沙组团,商都大道与前程路交会处,商都路北侧、前程路两侧;
整体占地约378亩、总建面约130万方,共分5个地块开发;
三期地块约4.7万方,总建面约18.9万方,容积率2.79,住宅建面约12.4万方,产品规划9栋住宅和2栋独立商业,1所幼儿园。
 
户型面积:89㎡三房、96-126㎡改善三房。
销售动态:目前,项目三期11号楼、
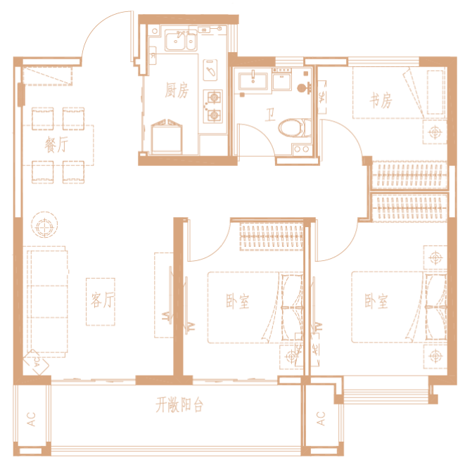
【汇泉博澳·东悦城】户型展示:
89㎡温馨三房:【三开间朝南、南北通透、180度全明采光+独立书房】
 
 
郑州【汇泉博澳·东悦城】售楼部电话:400-995-0531(中介勿扰)
楼盘最新价格,户型图,地址,电话,样板房,周边配套,项目介绍
温馨提示:绝不收取任何费用,请提前1小时预约看房,以免带来不好的看房体验
声明:本文由入驻焦点开放平台的作者撰写,除焦点官方账号外,观点仅代表作者本人,不代表焦点立场。
 
  
  
 
 
 

 
  
  
   
   
   
  