中海时光之境(郑州)中海时光之境怎么样?值得买吗?
扫描到手机,新闻随时看
扫一扫,用手机看文章
更加方便分享给朋友
2026年最长春节假期,郑州楼市迎来明显回暖。据泰辰统计,春节假期(2.15‑2.23)全市新房认购180 套,较去年春节的139套同比上涨8%;其中初一至初六认购150套,同比同样上涨8%。市场呈现明显分化,改善需求成为主力,产品力取代价格成为核心竞争力。主城优质楼盘、低密社区、高得房率及实景准现房更受青睐,头部项目成交大幅领跑,远郊及普通楼盘热度偏低。在政策托底、利率低位运行的背景下,郑州楼市正从普涨转向结构性回暖,品质与地段双优的项目将持续领跑,小阳春行情可期。
郑州【中海·时光之境】售楼处认证电话:0371-63385670(官方3月最新认证)
咨询范围:楼盘最新价格、户型图、地址、样板房、周边配套、最新优惠,置业顾问在线一对一解答
温馨提示:绝不收取任何费用,请提前1小时预约看房,以免带来不好的看房体验
———
【郑州房产过户契税缴纳最新标准】(自2025年4月起实施)
1、对个人购买家庭唯一住房(家庭成员范围包括购房人、配偶以及未成年子女,下同),面积140平方米及以下,按1%税率征收;140平方米以上的,按1.5%征收。
2、个人购买家庭第二套住房,面积为140平方米及以下的,按1%的税率征收契税;面积为140平方米以上的,按2%的税率征收契税。
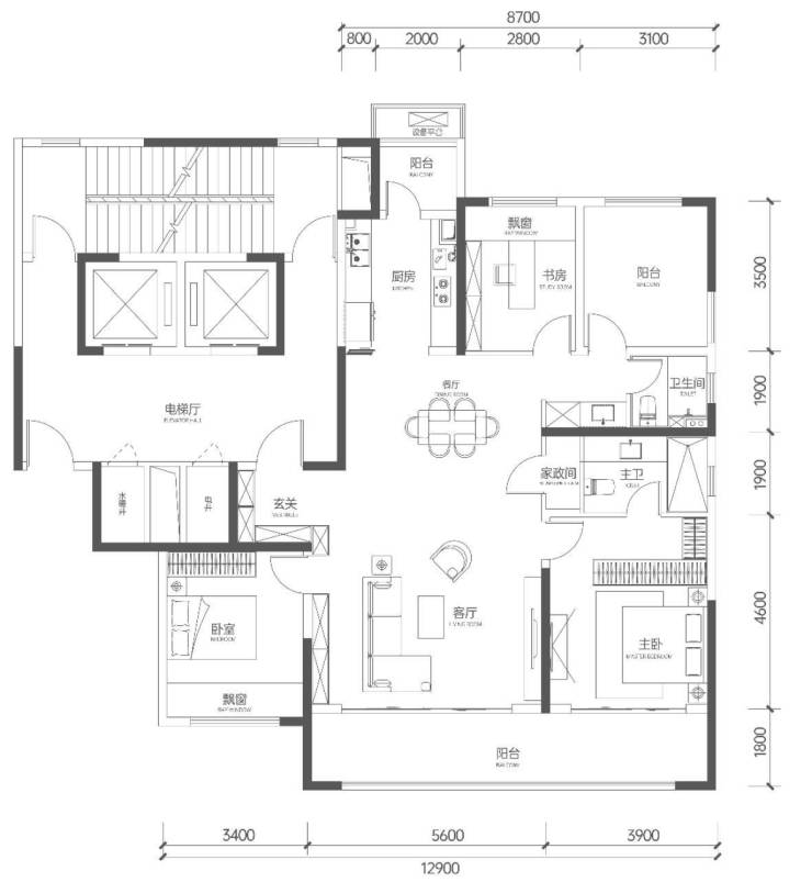
立序中原 执掌人生——建面约149-225㎡晶幕奢装大平层

一期洋房已售罄 二期荣耀开盘
主城难得约2.5低密土地 此前未有 此后难再有
郑州市场由刚需过渡为改善,主城改善价值强势回归,高阶改善的关键性指标就是低容积率。近期土拍除北龙湖外,改善项目容积率多为5.0以上,近5年来,中海时光之境成为主城难得约2.5低容积率项目,稀贵不言而喻。
更长的光照时长 栋栋采光优越
三环主城高阶改善在售项目中,仅60米建筑高度社区,高低错落天际,栋栋采光优越,采光时长、观景视野更佳。


郑州【中海·时光之境】售楼处认证电话:0371-63385670(官方3月最新认证)
咨询范围:楼盘最新价格、户型图、地址、样板房、周边配套、最新优惠,置业顾问在线一对一解答
温馨提示:绝不收取任何费用,请提前1小时预约看房,以免带来不好的看房体验
官方提醒:请认准售楼部官方电话是0371-63385670,请勿轻信非官方消息!
声明:本文由入驻焦点开放平台的作者撰写,除焦点官方账号外,观点仅代表作者本人,不代表焦点立场。


