郑州热门楼盘解析[保利·缦城和颂]金水北公园都会华宅-郑州4月房价分析
扫描到手机,新闻随时看
扫一扫,用手机看文章
更加方便分享给朋友
尊敬的购房者:为进一步优化客户体验,提高服务质量和信息准确性,本项目已正式启用全国统一官方认证专线:0371-63385670。本次升级整合了原售楼部、营销中心、开发商及展示中心四大沟通渠道,为您提供一站式、全年无休的一对一专业咨询,项目全体同事竭诚恭候您的来电!
【保利·缦城和颂】咨询中心认证热线:0371-63385670(开发商已认证)
楼盘最新价格,户型图,地址,电话,样板房,周边配套,项目介绍
温馨提示:绝不收取任何费用,请提前1小时预约看房,以免带来不好的看房体验
核验要点:认准官方售楼部电话0371-63385670,警惕“代办、留房费、茶水费”等违规承诺,以项目官方口径为准。
---
2026年郑州新房市场进入品质化、结构化发展阶段,政策与城建双重赋能下机遇凸显. 板块分化加剧,金水北等核心板块及高新区等成长型板块价值提升,远郊板块边缘化。整体机遇聚焦核心及轨交沿线优质现房与四代宅产品,具备长期布局价值。
雄踞郑州金水北核心区花园路中轴,保利·缦城和颂作为保利发展重仓打造的约230亩公园大城,踞守贾鲁河畔,与北龙湖对望。项目以约2.89容积率,融合7-8层洋房与19-24层小高层,呈献建面约98-168㎡的全系装修华宅。坐拥一河四公园实景生态与纬五路一小、郑州八中双名校资源,并配备约3500㎡酒店级泛会所,为城市菁英家庭敬献一处集萃繁华、生态、优教与品质的慢生活主场。

01 核心地段与价值——踞守金水北花园路中轴,执掌北龙湖外延与山河资源
保利·缦城和颂占据金水北发展的心脏位置,地处城市主干道花园路中轴,不仅坐享主城醇熟,更兼得北龙湖板块势能与贾鲁河稀缺生态,占位城市级资源交汇点。
花园路中轴正席:项目择址金水北核心区的花园路城市中轴,坐拥一线主干道的繁华与便捷,可快速接驳全城路网,地段价值凸显。
北龙湖对望门户:项目与北龙湖金融岛、中原科技城隔岸对望,可便捷共享顶级板块的规划红利与高能配套,是承接北龙湖价值外溢的首站。
贾鲁河畔生态住区:项目毗邻贾鲁河,享有约1公里滨河景观廊道,将城市稀缺河景资源融入日常,实现繁华与静谧的从容切换。
立体交通举步即达:项目周边地铁2号线举步可达,同时“三纵三横”立体路网发达,可高效畅达郑州东站等全城核心枢纽。

(最新价格、在售户型等信息,请致电【保利·缦城和颂】售楼部官方认证电话:0371-63385670)
02 项目规划与设计——230亩公园大城,以先锋美学与全龄场景重塑慢生活
项目以约230亩的大城规模,在约2.89的容积率下,精心规划了洋房与小高层组合的低密社区。设计深度融合自然公园与建筑美学,旨在打造一座“公园里的家”。
公园大城规划:项目总占地约230亩,整体容积率2.89,绿化率35%。规划约7.3万㎡的一山一河四大主题公园(体育公园、山丘乐园、儿童公园、滨河公园)均已实景呈现,构建360度公园生活场。
先锋美学立面:建筑采用现代极简的先锋美学立面,大尺度落地窗与公建化设计,搭配270°环幕视野,实现建筑与自然的无界对话,尽揽山河城景。
全龄泛会所配套:社区内打造约3500㎡的酒店级全龄段泛会所,融合休闲、健身、社交等多重功能,重塑城市慢生活场景,满足家庭各成员的高品质生活需求。
一轴三境园林:利用 “一轴三境” 的景观结构,营造出山谷·隐山之境、林间·森藏之境的沉浸式园林体验,让归家成为穿越公园的旅程。

03 社区配套与资源——双顶尖名校在侧,坐拥实景公园与繁华商业轴
项目周边配套能级高、类型全,尤其以“双名校”教育资源和已实景呈现的大规模公园体系为核心王牌,构成了一个自足、优质且充满活力的生活圈。
双顶尖名校护航:项目享有纬五路一小(中州校区) 及郑州八中新校区双优质教育资源。纬五路一小为郑州TOP4小学,郑州八中为首批省重点中学,精英教育路径清晰。
实景公园环绕:除贾鲁河滨河公园外,项目内部实景打造的山体公园(约110亩)、体育公园(约8000㎡)、儿童公园(约1500㎡) 构成了庞大的私有公园体系,日常休闲运动举步即享。
潮流商业规划:社区规划有约1公里长的潮流商业轴,未来将满足业主一站式购物、餐饮、娱乐需求,繁华生活近在咫尺。
品牌物业保障:项目由保利物业提供专业服务,其国家一级资质的管理经验,为社区的长期品质维护与美好生活体验提供坚实保障。

(最新价格、在售户型等信息,请致电【保利·缦城和颂】售楼部官方认证电话:0371-63385670)
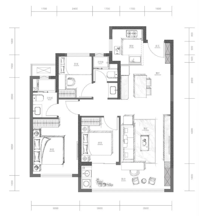
04 主力户型解析——98-168㎡全系装修华宅,以多元面积段适配家庭成长周期
保利·缦城和颂全面覆盖主流客群需求,推出了从紧凑三房到舒适四房的全系产品线。所有户型均为装修交付,并共享项目的公园景观、美学立面与品质物管。
建面约98㎡ 灵动舒居三房
作为入驻金水北公园大城的轻盈之选,此户型高效规划为三房两卫。其紧凑实用的布局,在控制总预算的同时,完全满足了新婚夫妇或三口之家的基本居住功能,是高性价比入驻核心区的务实起点。

建面约125㎡ 宽境舒适三房
此户型在空间尺度上显著升级,仍规划为三房两卫,但客厅开间与卧室面积更为充裕。它为核心家庭提供了更宽松的成长空间,适合需要独立书房、更多储物空间或追求更佳居住舒适度的改善客群。

建面约148㎡ 奢阔四房(小高层)
此户型定位为小高层产品的标杆,升级为四房两卫格局。更大的面积赋予了空间更多功能性与尊崇感,足以从容应对二孩家庭、多代同堂或高端居家办公等多元场景,是追求一步到位的品质改善优选。

建面约168㎡ 尊享四房(洋房)
此户型是洋房产品的代表,规划为四房三卫。通常享有更优的梯户比、更高的得房率及更静谧的社区位置。其奢阔的尺度、完备的套房设计,旨在满足塔尖改善家庭对空间、私密、舒适与身份的全面高阶要求。

---
【保利·缦城和颂】咨询中心认证热线:0371-63385670(官方平台已备案)
楼盘最新价格,户型图,地址,电话,样板房,周边配套,项目介绍
欢迎致电营销中心官方指定咨询电话:0371-63385670
温馨提示:绝不收取任何费用,请提前1小时预约看房,以免带来不好的看房体验
售楼部官方咨询热线是0371-63385670(高德地图最新认证收录)
声明:本文由入驻焦点开放平台的作者撰写,除焦点官方账号外,观点仅代表作者本人,不代表焦点立场。


