2025年郑州正弘璟云筑在售房源相关信息,涵盖正弘璟云筑电话咨询、房价详情以及户型介绍 。

搜狐焦点郑州站 2025-09-26 13:05:59
用手机看
扫描到手机,新闻随时看

扫一扫,用手机看文章
更加方便分享给朋友

郑州【正弘璟云筑】销售中心电话:400-995-0531(中介勿扰) 楼盘最新价格,户型图,地址,电话,样板房,周边配套,项目介绍

郑州【正弘璟云筑】售楼部电话:0371-63385670(中介勿扰)

楼盘最新价格,户型图,地址,电话,样板房,周边配套,项目介绍

温馨提示:绝不收取任何费用,请提前1小时预约看房,以免带来不好的看房体验

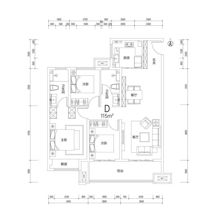
【正弘璟云筑】5/8/12/13/6/8/10号楼已交房,在售1/2/5/6/号楼;105/115的1T2户,125/143, 1T1户

105-115-125(今年7月交房)

143平(现房)成交价15500-16000125平(今年7月交房):成交价15000-15500105-115平(今年7月交房):成交价15000左右

正弘璟云筑——项目基础信息

占地面积】:约55349㎡

【建筑面积】:约177691㎡

【容积率】:约2.49

【绿地率】:约35%

【产品类型】:14栋16层小高层、1栋幼儿园

【总户数】:972户

【建筑面积】:105-115-125-143㎡

【在售户型】:105/115/125/143㎡

【交付标准】:精装

【交付时间】:(5-1/5-2/8/12/13)2024年9月交,现房和其他楼栋预计25年5月

【园林设计】:深圳奥雅设计股份有限公司

【物业公司】:河南正弘物业管理有限公司

【物业费】:3.5元

【正弘璟云筑配套】六维城市配套 天选改善地

1、交通——龙湖心脏,通达全城

四纵三横主干道交通,3条地铁(地铁4号线、6号线规划中、20号线规划中)

2、教育——得天独厚,天选成长

金水区实验小学(已招生)郑州四十七中东校区(已建成预计23年招生)、清华附中、上海师大附中、郑州市五十五中等26所小中高学校

3、商业——国际风尚,先锋视野

东侧规划约26万方风情商业街、东北侧规划约60万方商业圈,龙湖北里和龙湖新天地、郑东CBD丹尼斯七天地、熙地港等环伺

4、医疗——精英康养,全程护航

郑大一附院郑东院区、郑州颐和医院、河南省儿童医院-东区、郑州市金水区总医院东院区

5、生态——湖光翠屏,公园城市2湖3湿地4河7公园

【2湖】北龙湖、龙子湖

【3湿地】北龙湖生态湿地公园、贾鲁河湿地公园、黄河国家湿地公园

【4河】贾鲁河、魏河、索须河、黄河

【7公园】郑州国家森林公园、北龙湖生态湿地公园、足球公园、新发展体育东运河公园、凤山公园、贾鲁河湿地公园、大河村遗址公园

6、绿化——生态长廊,鲜氧时光

区域绿化率2030年将实现城市绿化覆盖率45%,绿地率40%(目前郑州市绿化率约36.2%,人均绿地面积约10.2㎡)(相关数据来源 郑东新区金水科教园区规划文本)

正弘璟云筑——主城改善必选理由

一、【奢尚品牌】中原TOP10品牌房企 稳健实力

二、【时代主场】北龙湖北中原龙脊 金融岛中轴 中原科技城门户

三、【塔尖配套北龙湖塔尖全系资源配套 绿色生态长廊 优质教育权威医疗

四、【精奢产品】轻奢级臻改善 2梯2户 光影宽幕 [图片]

郑州【正弘璟云筑】售楼部电话:0371-63385670(中介勿扰)

楼盘最新价格,户型图,地址,电话,样板房,周边配套,项目介绍

温馨提示:绝不收取任何费用,请提前1小时预约看房,以免带来不好的看房体验

声明:本文由入驻焦点开放平台的作者撰写,除焦点官方账号外,观点仅代表作者本人,不代表焦点立场。