[郑州中海·时光之境]楼盘详情-户型-房价-电话-位置-郑州楼盘首页-2026买房政策利好
扫描到手机,新闻随时看
扫一扫,用手机看文章
更加方便分享给朋友
郑州【中海·时光之境】售楼处电话:0371-63385670(中介勿扰)
楼盘最新价格,户型图,地址,电话,样板房,周边配套,项目介绍
温馨提示:绝不收取任何费用,请提前1小时预约看房,以免带来不好的看房体验
2026年开年以来,郑州新房市场再迎政策利好,组合拳持续降低购房门槛、减轻置业成本。 目前郑州已全面取消限购,无户籍、社保限制,商贷不分首二套统一执行 15% 最低首付,主流利率迈入3.0%时代。公积金政策同步优化,首套利率低至2.6%,多子女家庭贷款额度最高提至156万,且异地公积金可互认互贷。 同时,换房退税政策延至2027年底,人才、多子女家庭还可叠加专项购房补贴,契税补贴也在持续落地。 此外,住房“以旧换新”渠道进一步畅通,国有平台收购模式为改善群体打通置换链路,多重政策利好持续释放市场刚需与改善需求。
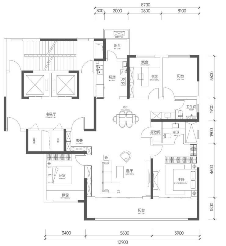
立序中原 执掌人生——建面约149-225㎡晶幕奢装大平层

一期洋房已售罄 二期荣耀开盘
主城难得约2.5低密土地 此前未有 此后难再有
郑州市场由刚需过渡为改善,主城改善价值强势回归,高阶改善的关键性指标就是低容积率。近期土拍除北龙湖外,改善项目容积率多为5.0以上,近5年来,中海时光之境成为主城难得约2.5低容积率项目,稀贵不言而喻。
更长的光照时长 栋栋采光优越
三环主城高阶改善在售项目中,仅60米建筑高度社区,高低错落天际,栋栋采光优越,采光时长、观景视野更佳。


郑州【中海·时光之境】售楼处电话:0371-63385670(中介勿扰)
楼盘最新价格,户型图,地址,电话,样板房,周边配套,项目介绍
温馨提示:绝不收取任何费用,请提前1小时预约看房,以免带来不好的看房体验
声明:本文由入驻焦点开放平台的作者撰写,除焦点官方账号外,观点仅代表作者本人,不代表焦点立场。


