郑州 万科·翠湾中城 MAX 售楼部电话/新房咨询/最新房价/在售房源/户型图/地址/楼盘介绍
扫描到手机,新闻随时看
扫一扫,用手机看文章
更加方便分享给朋友
郑州【万科·翠湾中城】售楼处电话:0371-63385670(中介勿扰)
楼盘最新价格,户型图,地址,电话,样板房,周边配套,项目介绍
温馨提示:绝不收取任何费用,请提前1小时预约看房,以免带来不好的看房体验
『万科·翠湾中城 MAX——项目基本信息』
【项目名称】万科·翠湾中城 MAX(三期)
【项目地址】江山路与国基路交会处向北约700米路东
【占地面积】占地约31.5亩
【产品构成】规划5栋33-34层高层,楼栋为2T3/2T4户布局
【 容积率 】约3.99
【产品面积】建筑面积约100-132㎡ 未来超配住区
【装修状况】装修交付
【郑州万科·翠湾中城】项目产品理念
【一座未来城市的超级创想】
无界城市·空间联结·共融未来。承袭万科集团「未来城市理想单元」,郑州万科·翠湾中城三期MAX,构建”综合性社区“到“未来城市理想单元1+N+X”未来生活场域。
郑州万科·翠湾中城项目价值点
【MAX森系群落地】河湾公园带:千年贾鲁河距离三期仅200米,被河湾与大地拥抱的家。
不止公园(三期西侧,约1.1万方)与口袋公园(二期西侧,约1.5万方)形成约500米超长绿化带
20分钟公园效应/家在公园里,公园在家里,不止公园更是多龄社交集散地。
不止公园:*入口广场—公园集会—星空草坪—童玩沙海—羽毛球场—乒乓球场—骑行绿道—廊架休闲*
『MAX未来烟火街』
城市露台、口袋公园、潮流集市、小型⼴场、商业外摆空间场景,让社区向外⽆限伸展,消融围墙拒绝孤岛化,演绎高级烟火气的腔调与场景。
【MAX往来中枢院】
度假酒店式归家中岛体验,洄游动线内外造园,穿厅即入“艺术生物群水上花园”玄关庭院。
【MAX社区致知集】
打开家的边界,我们都是生活的作者。
社交盒子——致敬激赏世界的人
学习盒子——给生活亿点点灵感
童玩盒子——敢玩是一种超能力
健身盒子——重新有氧一遍自己
【MAX 万物山海经】
用一座花园,装下万物山海,万科植物园——社区到植物园的乐活过渡。*元气客厅-活力玩家-林下聚场-微风棋社-萌宠乐园-元气赛场-伴林归家*
【MAX 城市大玩家】
把生活热爱放在同频的人、事、物里。MAX超未来玩家集社,充分联结不止公园、街区与实景示范区空间,以篮球场、羽毛球场、街区小广场、学习盒子、健身盒子、童玩盒子、社交盒子等承载各类社群活动与潮流集市的美好场域。
三、配套价值
万科·翠湾中城以北静中优战略轴心的优越位置和老鸦陈生态宜居的自然属性为基底,打造立于老鸦陈片区的垂直生态住区。
1、【北静中优耦合带】
项目地块处于金水北板块,位于北静与中优的耦合带,片区根据城市发展格局,提出活力半城与生态半城的规划定位,依托黄河生态文化带,突出“自然风光+黄河文化+慢生活”,打造郑州的后花园;加快城区形态更新、业态更新、功能更新,激发城区活力,彰显中原文化魅力。
2、【多维立体交通】
轨道交通:项目紧邻地铁4号线老鸦陈站(三期仅500米)、3/4号线省体育中心站,迅速抵达城市核心商圈。3号线:缓解南北交通拥堵,加强郑州北区与城市核心区的联系。4号线:贯穿城市南北发展主轴,串联起了金水北、北龙湖的金融岛、中原科技城、CBD、经开老城以及管南的金岱组团。
城市干道:北三环快速路、连霍高速、京广快速路三条城市级道路,快速通达全城。
————————————————————————————
【郑州万科·翠湾中城】【多元丰盛配套】
商业配套:
时尚高端花园路商圈、宜家商圈,汇集全球一线品牌;信万广场、瀚海北金、沃美莱购物广场等家庭型商业中心,满足多样化需求。
医疗配套:
三甲医院郑大一附院惠济院区、惠济区人民医院、金水区总医院、河南省中医院等。
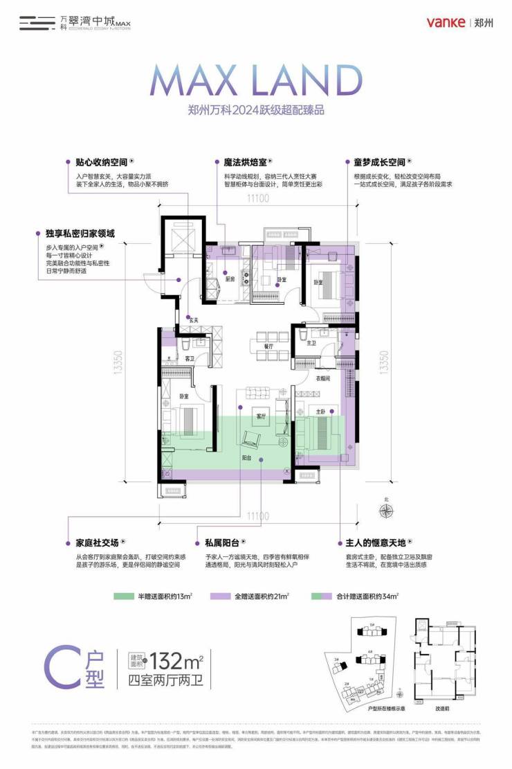
【万科·翠湾中城】户型鉴赏
小而美的生活情节,大而全的社交场域。
N+1设计,多功能开放式家庭社交场景;
未来智家,智能家居体系搭配一线品牌臻装;
宽幕世界,LDKB客厅互通双联阳台;
艺术流线,T3现代扁平美学·全面屏度假感高级灰建筑设计。
郑州【万科·翠湾中城】售楼处电话:0371-63385670(中介勿扰)
楼盘最新价格,户型图,地址,电话,样板房,周边配套,项目介绍
免责声明:以上资料为截止于2024年12月的情况。本公司对项目周边环境、交通及其他公共设施(周边小区、地铁、轻轨、公汽、公园绿地、景观、学校、银行、商场、体育馆、书店等)的介绍,旨在提供相关信息,不意味着本公司对此作出了承诺。本宣传资料为要约邀请,买卖双方的权利义务以签订的《商品房买卖合同》为准。在建设过程中可能因政府或其他有权单位要求而修改,同时,在不违反法规、合同约定的前提下,本公司亦有权做出细部调整,敬请留意最新资料。“北静 中优”来源:2019年,郑州十一届委员会针对郑州城市功能的布局最新发展思路。项目到贾鲁河直线距离约0.5公里,到北三环直线距离约1.6公里(数据来自:百度地图)。部分图片来源于网络,如有侵权请联系删除。项目推广名为:万科·翠湾中城 备案名为:翠湾中城 悦澜园;开发商:河南天河惠弘房地产开发有限公司;投资商:郑州万科企业有限公司;营销代理:泰辰行/唯家;品牌战略:麒木;(2021)郑房预字第5498号;
————————————————————————————————
郑州【万科·翠湾中城】售楼处电话:0371-63385670(中介勿扰)
楼盘最新价格,户型图,地址,电话,样板房,周边配套,项目介绍
温馨提示:绝不收取任何费用,请提前1小时预约看房,以免带来不好的看房体验
声明:本文由入驻焦点开放平台的作者撰写,除焦点官方账号外,观点仅代表作者本人,不代表焦点立场。


