郑州2026春节买房优惠有哪些?信达时代国著(郑州)信达时代国著房价-户型-开盘时间-房产税契税多少
扫描到手机,新闻随时看
扫一扫,用手机看文章
更加方便分享给朋友
郑州【信达·时代国著】售楼处电话:0371-63385670(中介勿扰)
楼盘最新价格,户型图,地址,电话,样板房,周边配套,项目介绍
温馨提示:绝不收取任何费用,请提前1小时预约看房,以免带来不好的看房体验
———
【郑州房产过户契税缴纳最新标准】(自2025年4月起实施)
1、对个人购买家庭唯一住房(家庭成员范围包括购房人、配偶以及未成年子女,下同),面积140平方米及以下,按1%税率征收;140平方米以上的,按1.5%征收。
2、个人购买家庭第二套住房,面积为140平方米及以下的,按1%的税率征收契税;面积为140平方米以上的,按2%的税率征收契税。
【 信达地产 · 时代国著 】—时代中坚上的国匠合著—
建筑面积约120-140㎡宽景大宅
位于郑东新区北部,东三环之上地处金水科教园区,于三区拱卫之地· 主轴芯 · 北龙湖上封面作品
————————————————————————
【基础信息】
【项目名称】:信达地产·时代国著
【规划格局】:占地约5万方,2.09超低容积率
【产品营造】:6-7F洋房和16-18F品质小高层
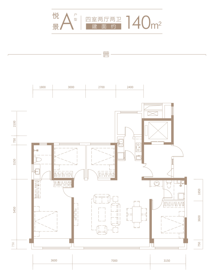
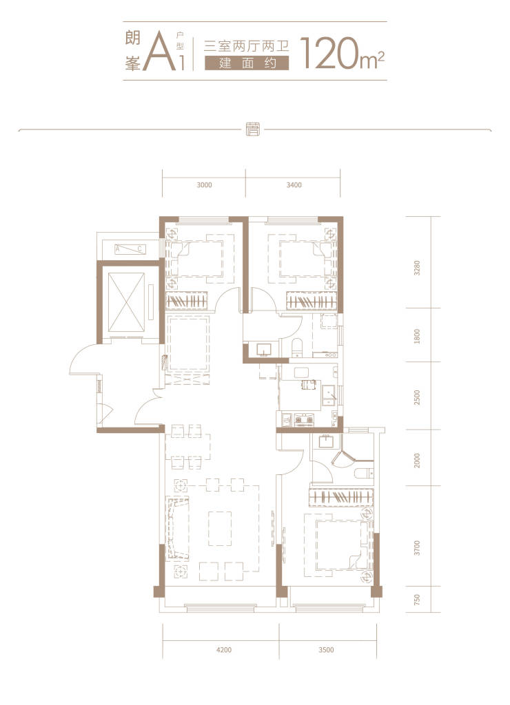
【国匠筑居】:建筑面积约120-140㎡宽景大宅
【国匠造园】:四轴四境六院
【国匠礼遇】:悦生活国家一级资质物业
【国匠智能】:前瞻智慧社区+十二大人性化社区设施
【三环轴芯通南北 同享繁华致郑东】
【交通配套】
紧邻东三环,四纵四横交通路网畅连郑东CBD、中心城区集粹北龙湖与中原科技城优质资源
【商业配套】
速达绿地新都会、丹尼斯七天地
熙地港、龙湖里,银泰In系
华润万象城,太格茂等商圈繁华生活一站尽享
【教育配套】双学校覆盖,未来更稳值
签约优质小学纬五路一小东岳校区(已招生),出门见校郑州市第四十七中东校区划片入学
更有河南省实验中学北校区
第五十五中学、第九十四中学
郑东新区龙子湖小学
金水区第二实验小学
龙子湖高校区等全龄教育环伺
【医疗配套】
紧邻郑大一附院、河南省儿童医院颐和医院、圣玛妇产医院全面护航家人健康未来
【生态配套】
择居贾鲁河畔,坐拥三河两湖生态资源出门即可领略自然生态秘境风采
美学外立面现已实景呈现
【承袭国学仪韵 诠释东方画境】
约7200㎡示范区 惊艳呈现,园林设施一目了然
实景品质看在眼里,踏实在心里
【央企实景准现房 国著品质更稳值】
楼栋主体全线封顶,看房也都是实景看房,
【师者匠心造居 意简舒惬合度】
遵循“奢阔开间 超大横厅 高得房率 天幕视野”空间设计法则,精心雕琢每一寸空间
【洋房8#户型鉴赏】

【空间鉴赏】
【高层1#、2#户型鉴赏】

【空间鉴赏】
【高层4#户型鉴赏】

【空间鉴赏】
本项目推广名为信达地产时代国著,地名办核准名为信达康桥筑;开发公司为郑州市沁鹏置业有限公司;本资料为要约邀请,不作为要约或承诺;相关宣传内容不排除因政府相关规划、规定及出卖人分期规划、未能控制等原因而发生变化;出卖人可能会不定期对宣传材料进行修改;买卖双方的权利义务以双方签订的《商品房买卖合同》及其补充协议、附件等书面文件为准;本资料所发布的内容为2024年10月前的信息,敬请留意最新资料。
————————————————————————————————
郑州【信达·时代国著】售楼处电话:0371-63385670(中介勿扰)
楼盘最新价格,户型图,地址,电话,样板房,周边配套,项目介绍
温馨提示:绝不收取任何费用,请提前1小时预约看房,以免带来不好的看房体验
声明:本文由入驻焦点开放平台的作者撰写,除焦点官方账号外,观点仅代表作者本人,不代表焦点立场。


