郑州-中海·时光之境 售楼处中心电话/在售房源/最新房价/户型图/新房咨询/地址/楼盘介绍
扫描到手机,新闻随时看
扫一扫,用手机看文章
更加方便分享给朋友
郑州【中海·时光之境】销售中心电话:0371-63385670(中介勿扰)
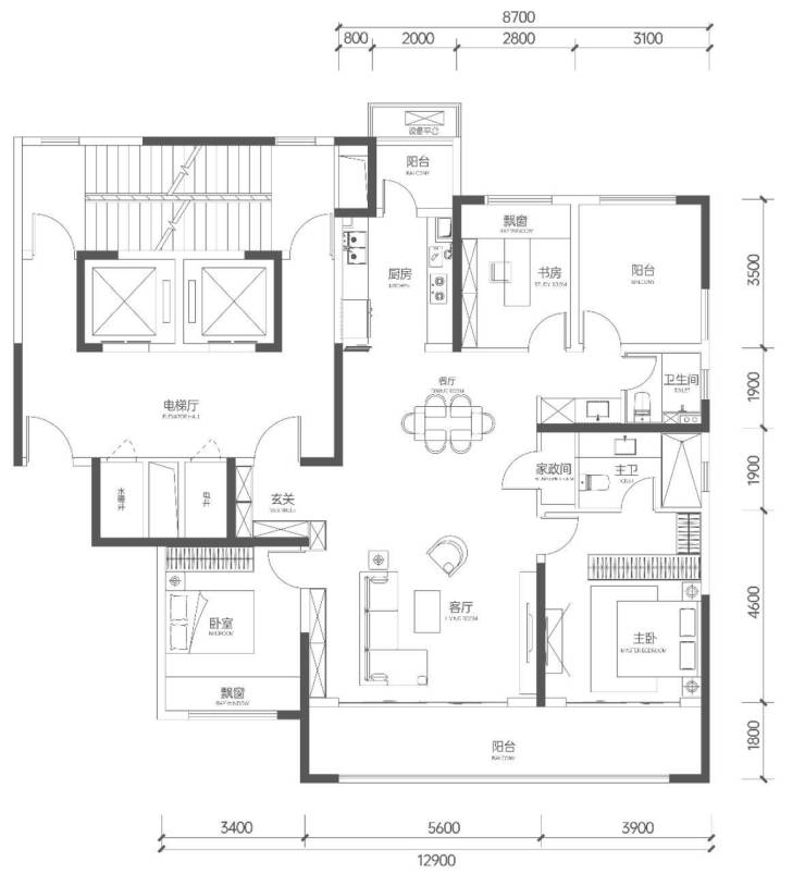
楼盘最新价格,户型图,地址,电话,样板房,周边配套,项目介绍
温馨提示:绝不收取任何费用,请提前1小时预约看房,以免带来不好的看房体验
—————————————————————
——约2.5容积率,此前未有,此后难再。一期洋房售罄,见证主城改善购买力——
当主城土地日渐稠密,低容积率已成为高阶改善的终极标尺。中海·时光之境,以中海地产硬核产品力,于三环主城匠造容积率仅约2.5的稀贵低密住区。一期洋房迅速售罄,市场热度可见一斑。现二期荣耀开盘,主打建面约149-225㎡晶幕奢装大平层,恭迎品鉴!致电 0371-63385670,预约参观样板房,把握主城最后的上车机会。
稀缺地段: 雄踞三环主城,是近五年罕有的低密地块。
硬核指标: 容积率仅约2.5,建筑限高约60米,为主城改善树立价值标杆。
顶级产品: 晶幕奢装大平层,以玻璃幕墙立面与精工装修,定义新一代奢居美学。
市场热度: 一期洋房已售罄,二期承接热度盛大开盘,备受市场追捧。
舒适体验: 栋栋采光优越,视野开阔,享受更长的光照时长与更佳的观景效果。
郑州市场正从刚需向改善过渡,主城价值强势回归。而容积率是衡量改善含金量的关键指标。
近期土拍(除北龙湖外),新项目容积率多在5.0以上。中海·时光之境约2.5的低容积率,在主城堪称“此前未有,此后难再有”的孤品,其稀缺性是不言而喻的价值保障。
约2.5的容积率直接转化为更少的建筑密度、更宽绰的楼间距和更丰富的园林空间。
整个社区建筑高度仅约60米,形成高低错落的优雅天际线,确保了“栋栋采光优越”,每家每户都能享受更长的日照时间和更开阔的观景视野,这是高密社区无法比拟的居住体验。
建筑美学: “晶幕”理念,意味着大面积玻璃幕墙立面的运用,打造璀璨晶莹、通透现代的建筑形象,成为区域内的视觉焦点和美学封面。
奢适尺度: 建面约149-225㎡的纯粹大平层户型,专为城市塔尖阶层和改善家庭设计,保障了空间的奢阔感与功能性。
精工装修: “奢装”意味着由中海地产带来的高品质精装修交付,省去装修烦恼,拎包即可入住符合高端品味的美居。

主城难得约2.5低密土地 此前未有 此后难再有
郑州市场由刚需过渡为改善,主城改善价值强势回归,高阶改善的关键性指标就是低容积率。近期土拍除北龙湖外,改善项目容积率多为5.0以上,近5年来,中海时光之境成为主城难得约2.5低容积率项目,稀贵不言而喻。
更长的光照时长 栋栋采光优越
三环主城高阶改善在售项目中,仅60米建筑高度社区,高低错落天际,栋栋采光优越,采光时长、观景视野更佳。

郑州【中海·时光之境】销售中心电话:0371-63385670(中介勿扰)
楼盘最新价格,户型图,地址,电话,样板房,周边配套,项目介绍
温馨提示:绝不收取任何费用,请提前1小时预约看房,以免带来不好的看房体验
声明:本文由入驻焦点开放平台的作者撰写,除焦点官方账号外,观点仅代表作者本人,不代表焦点立场。


