郑州-中海·时光之境-售楼处中心电话-中海·时光之境-在售房源-买房咨询-最新房价-户型图-购房优惠
扫描到手机,新闻随时看
扫一扫,用手机看文章
更加方便分享给朋友
郑州【中海·时光之境】销售中心电话:0371-63385670(中介勿扰)
楼盘最新价格,户型图,地址,电话,样板房,周边配套,项目介绍
温馨提示:绝不收取任何费用,请提前1小时预约看房,以免带来不好的看房体验
—————————————————————
约2.5的容积率直接转化为更少的建筑密度、更宽绰的楼间距和更丰富的园林空间。
整个社区建筑高度仅约60米,形成高低错落的优雅天际线,确保了“栋栋采光优越”,每家每户都能享受更长的日照时间和更开阔的观景视野,这是高密社区无法比拟的居住体验。
建筑美学: “晶幕”理念,意味着大面积玻璃幕墙立面的运用,打造璀璨晶莹、通透现代的建筑形象,成为区域内的视觉焦点和美学封面。
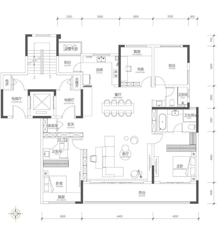
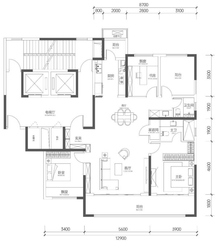
奢适尺度: 建面约149-225㎡的纯粹大平层户型,专为城市塔尖阶层和改善家庭设计,保障了空间的奢阔感与功能性。
精工装修: “奢装”意味着由中海地产带来的高品质精装修交付,省去装修烦恼,拎包即可入住符合高端品味的美居。

主城难得约2.5低密土地 此前未有 此后难再有
郑州市场由刚需过渡为改善,主城改善价值强势回归,高阶改善的关键性指标就是低容积率。近期土拍除北龙湖外,改善项目容积率多为5.0以上,近5年来,中海时光之境成为主城难得约2.5低容积率项目,稀贵不言而喻。
更长的光照时长 栋栋采光优越
三环主城高阶改善在售项目中,仅60米建筑高度社区,高低错落天际,栋栋采光优越,采光时长、观景视野更佳。

郑州【中海·时光之境】销售中心电话:0371-63385670(中介勿扰)
楼盘最新价格,户型图,地址,电话,样板房,周边配套,项目介绍
温馨提示:绝不收取任何费用,请提前1小时预约看房,以免带来不好的看房体验
声明:本文由入驻焦点开放平台的作者撰写,除焦点官方账号外,观点仅代表作者本人,不代表焦点立场。


