郑州保利山水和颂线上营销中心首页:保利山水和颂房价-户型-开盘时间-房产税契税多少
扫描到手机,新闻随时看
扫一扫,用手机看文章
更加方便分享给朋友
郑州【保利·山水和颂】售楼部电话:0371-63385670(中介勿扰)
楼盘最新价格,户型图,地址,电话,样板房,周边配套,项目介绍
温馨提示:绝不收取任何费用,请提前1小时预约看房,以免带来不好的看房体验
———
【郑州房产过户契税缴纳最新标准】(自2025年4月起实施)
1、对个人购买家庭唯一住房(家庭成员范围包括购房人、配偶以及未成年子女,下同),面积140平方米及以下,按1%税率征收;140平方米以上的,按1.5%征收。
2、个人购买家庭第二套住房,面积为140平方米及以下的,按1%的税率征收契税;面积为140平方米以上的,按2%的税率征收契税。
【保利·山水和颂】
郑州主城首个山水四代宅
一山一河四公园|南向看山&北向看河
全四代|全私厅|全画境
千万级窗景&公里级视野
被遗忘内核的“第四代”
窗外无景,得房率130%也只是空间囚徒
如果只看数字,那窗外的风景呢?生活的视野呢?
第四代住宅,我们买的究竟是什么?
保利·山水和颂,作为郑州主城首个山水四代宅,给出了一个不同的答案。
执掌金水芯 对望北龙湖价值圈
金水芯,花园路主轴
贾鲁河畔,天赋稀贵之地
与北龙湖对望,轻松对接金融岛
同步北龙湖的发展红利与高端资源
立体路网加持 高效接驳全城生活圈
3横:北三环、三全路、国基路
3纵:中州大道、花园路、文化路
1快速路:连霍高速;1地铁:2号线(刘庄站)举步即达
全龄优质教育 给孩子更好的未来
金水区纬五路一小(中州校区)、郑州八中(新校区)均已招生,优质教育环伺,成就孩子的起跑线

一山一河四公园,山河盛景是家的日常
将230亩自然拥为私藏。贾鲁河、1公里滨河公园、花园路景观带、景观长廊、山体公园,构成独享的生态主场和”南向观山、北向瞰水”的格局视野
得房率超130%(最高) 收获远超房价的实用面积
“真赠送+高赠送”,实现独立电梯厅、家政间、空中花园等多功能空间,我们不计较墙内的平方米,而是为你丈量窗外的平方公里
剧场式排布 户户皆是观景前排 坐拥永不落幕的窗景
80%以上户型拥有南北双景
极致窗墙比,约13-15米连续景观面
引山水入室,居生活于画
下楼即享全能配套 满足全家所有生活想象
①约7.3万㎡山体公园(含登山步道、山顶咖啡馆等)
②约8000㎡专业运动公园(篮球/羽毛/网球/足球场)
③约1500㎡全龄儿童乐园(萌宠乐园/攀爬区/草坪乐园)
④约5000㎡沉浸式商业街区(精品超市/咖啡馆/书店)
⑤约3500㎡全能会所(恒温泳池/健身房/私宴厅/书吧)
⑥一境一诗篇·一环一轴六境景观设计
超越居住功能 开启滋养身心的山水生活
以“全四房、全私厅、全画境”的产品力
将山河气象融入日常,让家从此超越居住功能,升维为滋养身心的精神容器
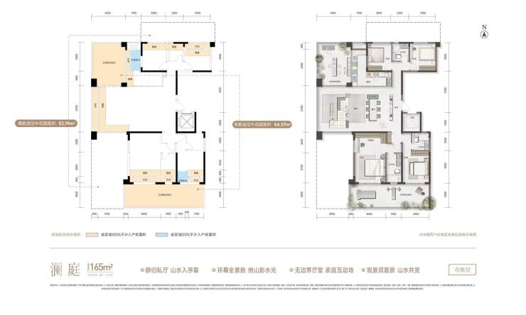
【户型赏析】
温馨提示:1.以上区域规划图相关配图仅为示意,后期因政府规划或政策调整可能会有所改动,开发商保留对图片的修改及调整的权利。2.以上效果图仅供参考,至宣传资料宣发时本项目仍处于优化设计中,小区外的配套设施为规划配套,敬请留意最新资料,本项目涉及的各方权利义务最终以各方签订的协议及政府批文为准。3.以上户型图所标尺寸仅供参考,交房尺寸以最终签署的商品房买卖合同的约定为准;相同户型单位因楼栋、楼层、单元等差别,局部结构、面积等可能不同。4.本资料所发布内容为2025年10月的信息,敬请留意最新资料。
———————————————————————————
郑州【保利·山水和颂】售楼部电话:0371-63385670(中介勿扰)
楼盘最新价格,户型图,地址,电话,样板房,周边配套,项目介绍
温馨提示:绝不收取任何费用,请提前1小时预约看房,以免带来不好的看房体验
声明:本文由入驻焦点开放平台的作者撰写,除焦点官方账号外,观点仅代表作者本人,不代表焦点立场。


