郑州 城发玥园 售楼部电话/新房咨询/最新房价/在售房源/户型图/地址/楼盘介绍
扫描到手机,新闻随时看
扫一扫,用手机看文章
更加方便分享给朋友
郑州【城发玥园】售楼部电话:0371-63385670(中介勿扰)
楼盘最新价格,户型图,地址,电话,样板房,周边配套,项目介绍
温馨提示:绝不收取任何费用,请提前1小时预约看房,以免带来不好的看房体验
——————————————————
项目地址: 郑州·金水区·丰产路与经五路交汇处南100米路东
项目规划:
占地面积:约8397.66㎡
总建筑面积:约51403 .93㎡,
产品规划:80-172㎡藏品美宅
产权:70年
容积率:约4.49
绿地率:约25%

【城发玥园优质配套】项目周边拥有天花板级别的交通、商业、医疗、休闲、教育等资源配套,为您的理想生活赋能。
【交通资源】三横三纵交通路网(三横:金水路、黄河路、农业快速路;三纵:文化路、花园路、经三路);三地铁环绕(2、5号线运营中,7号线在建,预计2024年底通车);红专路下穿隧道可直达郑东新区CBD,快速连通高架地铁,畅达全城。
【商业资源】临近花园路国贸360、花园路丹尼斯、正弘城、CBD丹尼斯七天地商圈、紫荆山商圈等,满足您吃喝玩乐购一站式需求。
【医疗资源】临近河南省人民医院、河南省胸科医院、郑州人民医院等三甲医院,完备医疗配套,为您的健康保驾护航。
【休闲资源】经纬广场、文博公园、郑州市动物园、人民公园、紫荆山公园、CBD如意湖、河南博物院、河南省科学技术馆等休闲生活配套近在咫尺,玩转惬意人生。
【教育资源】项目周边黄河路一小、河南省实验小学、文化路一小、河南省实验中学、郑州九中等全龄段教育资源环伺,与河南农业大学、郑州大学北校区、河南财经政法大学等高校学府为邻,文化底蕴深厚,给孩子更高的教育起点,成就孩子锦绣未来。

【城芯优居】
【品质社区】全社区11F+34F舒居建筑规制,约27.7%建筑密度,约4.49容积率,约25.28%绿地率,打造品质社区。

【舒居生活】项目以近乎苛刻的标准,奢造城芯11F+34F舒居建筑,以与生俱来的臻贵尺度,品质化的居住需求,展现身份显赫的生活主场,为金水核芯峯层实现理想生活居所。

【精致空间】建筑面积约80-172㎡藏品美宅,最大约7.8米超大阳台,IMAX级景观视野;三开间朝南,大采光面,迎纳阳光和清风入户,尽享舒居人生。
郑州【城发玥园】售楼部电话:0371-63385670(中介勿扰)
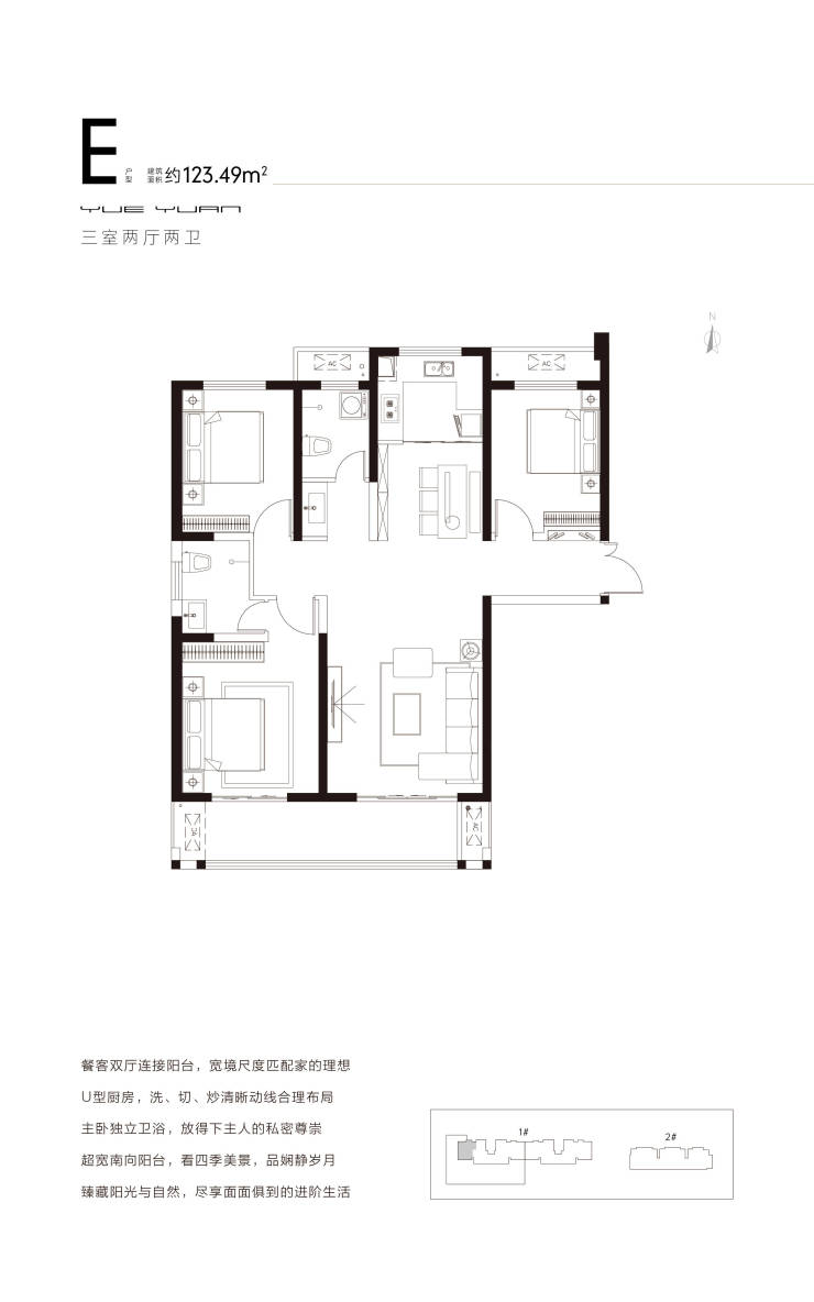
【城发玥园】【户型鉴赏】
郑州【城发玥园】售楼部电话:0371-63385670(中介勿扰)
本资料所载所有信息、计划、详细资料、本宣传资料为要约邀请,不构成要约内容,具体信息以合同约定及政府最终审批为准,本资料发布时间为2024年9月。本公司保留对宣传画面修改的权力,敬请留意最新资料。本资料所载所有信息、计划、详细资料、照片和插图仅供参考, 不构成或被理解为明示或暗示提供承诺或保证, 也不作为合同要约, 当中涉及的内容以政府最后批准文件、图纸的规定及双方签署的商品房买卖合同/租赁合同的约定为准。在本资料的制作过程中, 每一个合理的注意义务已被加以考虑, 开发商、其代表或代理人不对任何不准确遗漏信息负责。建议有兴趣的人可自行查询 , 并通过各方面的法律咨询以了解相关信息。本文部分配图来源于网络,如涉及侵权,请及时联系删除。
————————————————————————————————————
郑州【城发玥园】售楼部电话:0371-63385670(中介勿扰)
楼盘最新价格,户型图,地址,电话,样板房,周边配套,项目介绍
温馨提示:绝不收取任何费用,请提前1小时预约看房,以免带来不好的看房体验
声明:本文由入驻焦点开放平台的作者撰写,除焦点官方账号外,观点仅代表作者本人,不代表焦点立场。


