郑州-敏捷·江山誉-售楼处中心电话-敏捷江山誉楼盘详情-最新成交价更新-户型图
扫描到手机,新闻随时看
扫一扫,用手机看文章
更加方便分享给朋友
郑州【敏捷·江山誉】售楼处电话:0371-63385670(中介勿扰)
楼盘最新价格,户型图,地址,电话,样板房,周边配套,项目介绍
温馨提示:绝不收取任何费用,请提前1小时预约看房,以免带来不好的看房体验
——————————————————————
【敏捷·江山誉】金水主城一环地段
新品加推:85-144㎡精装修成品好房精装实景现房,今年买今年住
金水芯·三地铁·85-152㎡成品华宅
在售情况:2#东单元清栋,西单元85-144㎡新品加推 【4#尾货 5#售罄 1#待售】
项目情况:一期约17万㎡高端住宅
交付年限/标准:70年产权,成品房交付
项目配套:自身涵盖住宅、商业(公寓/商业办公)、幼儿园以及小学(纬四路小学)
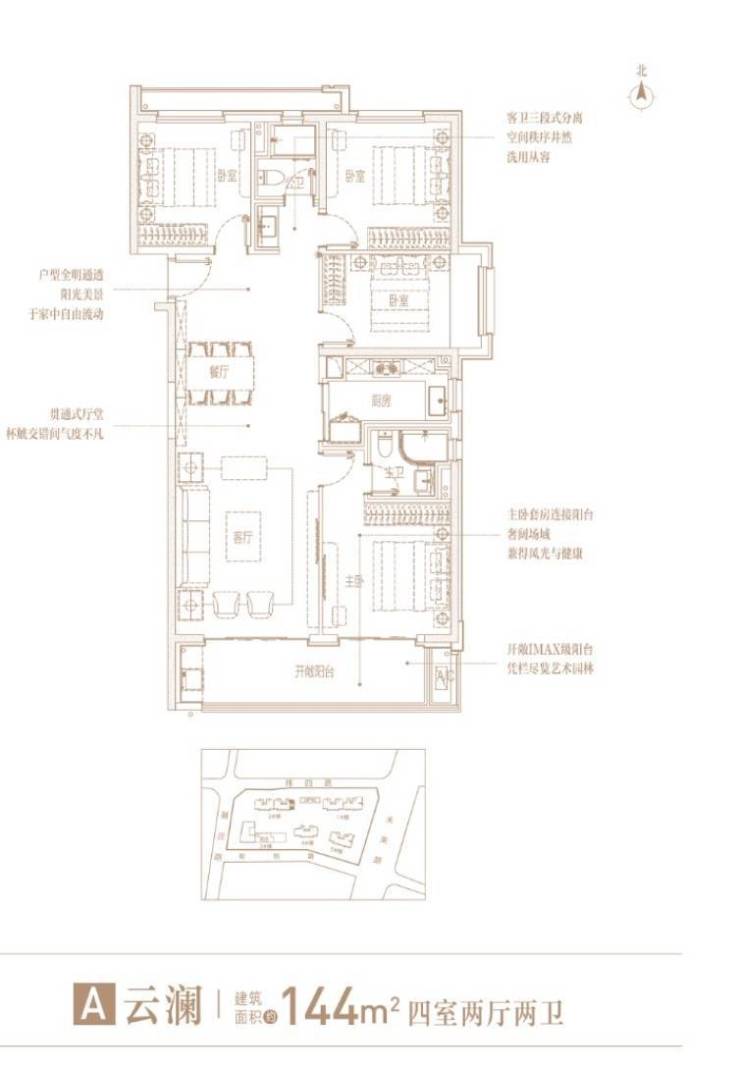
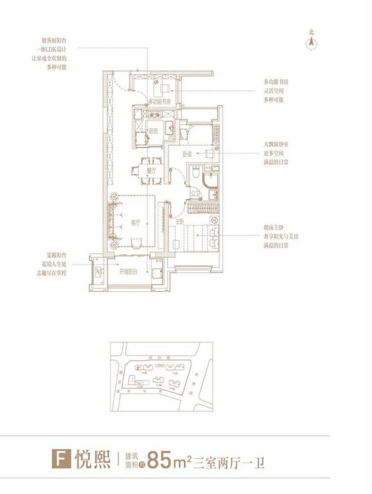
产品面积:152㎡四房、144㎡四房、128㎡三房、85㎡小三房
购买敏捷江山誉的九大理由:
稳健敏捷 房企百强 放心置业
金水芯 三地铁 一路之隔对望CBD
繁华配套 尽享都市便捷生活
石材、铝板加持 高端楼盘标配
国际认证 健康好房
蒙德里安艺术园林 三重归家礼仪
7.2米开间阳台 80%得房率
敏捷誉系 成品高标
精装实景现房 今年买今年住
项目楼栋鸟瞰图:
敏捷江山誉区域图:
敏捷江山誉配套图:
商业:CBD商圈、曼哈顿商圈、国贸商圈、二七商圈核心交会;
教育:全龄优质学区:省直机关第一幼儿园、省实验小学、纬四路小学、纬五路二小总、二十三中学、八中;
生态:金水河、紫荆山公园、红白花公园、CBD郑州之林;
敏捷江山誉效果图:
敏捷江山誉户型图:
敏捷江山誉园区实景图
141㎡样板间实拍图
*1.本广告仅为要约邀请,不作为合同的组成部分,买卖双方的权利义务以《商品房买卖合同》约定为准;2.涉及市政、环境、交通信息【本资料对周围的道路规划、环境、交通、公共设施等所作文字介绍,旨在提供相关信息,不意味着本公司对此作出了任何承诺,所涉园区布局与绿化等情况仅为展示,具体信息以政府公示的文件与实际呈现为准。3.本宣传资料所涉及的户型仅供示意参考,其装修、家具、陈设等非交付标准,不属于交付范围。不同户型的面积尺寸,功能布局,空间分割、门窗/管井形态位置等均有不同;相同户型因楼栋、楼层、单元等差别,局部结构、面积等也可能不同,具体以政府部门最终审定的图纸和销售合同为准。4.备案名:敏捷江山誉南苑(一期)开发商:河南新银基房地产开发有限公司(2021)郑州预字第5522
————————————————————————————————
郑州【敏捷·江山誉】售楼处电话:0371-63385670(中介勿扰)
楼盘最新价格,户型图,地址,电话,样板房,周边配套,项目介绍
温馨提示:绝不收取任何费用,请提前1小时预约看房,以免带来不好的看房体验
声明:本文由入驻焦点开放平台的作者撰写,除焦点官方账号外,观点仅代表作者本人,不代表焦点立场。


