【郑州金投申泰·中原印象】售楼处电话【金投申泰·中原印象】在售房源_购房咨询_最新房价_地址_配套
扫描到手机,新闻随时看
扫一扫,用手机看文章
更加方便分享给朋友
郑州【金投申泰·中原印象】售楼部电话:0371-63385670(中介勿扰)
楼盘最新价格,户型图,地址,电话,样板房,周边配套,项目介绍
温馨提示:绝不收取任何费用,请提前1小时预约看房,以免带来不好的看房体验
金水投资集团
郑州金水投资集团有限公司是金水区人民政府成立的国有资本投资运营公司,为项目提供了最强的交付保障。
【金投申泰·中原印象】售楼部电话:0371-63385670(中介勿扰)
【金投申泰·中原印象】【顶配资源密度】
•全龄名校学境
幼儿园:省直机关第一幼儿园、河南省实验幼儿园
小学:纬五路二小总校、纬五路一小、河南省实验小学
中学:郑州八中总校、省实验中学、郑州二十三中、郑州三十四中
•都会通衢动脉
距地铁5号线省人民医院站约200米、距地铁2号线黄河路站约700米;三横三纵立体交通网络,步行5分钟进地铁5号线省人民医院站、驾车5分钟上农业路高架,20分钟上连霍高速(柳林收费站)
•政经中枢领地
人大常委、政协、省公安厅、省水利厅、省司法厅、省农科院等
•都会金融引擎
省财政厅、省国税局、中心保诚人寿大厦、中国农业发展银行(河南省分行)、中国邮政银行(河南省分行)、中国建设银行(经三路支行)、中国农业银行(经三路支行)等
•权威医疗矩阵
河南省人民医院、河南省胸科医院、河南省肿瘤医院、郑州大学第一附属医院
•自然人文地标
河南省博物院、郑州市动物园、经纬广场、紫荆山公园、北龙湖湿地公园、CBD如意湖等
•奢尚生活磁场
国贸360、正弘城、熙地港、大卫城等

【金投·申泰中原印象】售楼部电话:0371-63385670(中介勿扰)
【安缦奢雅·五维美学园林】
园林设计:重约庆道合执笔,定制酒店级约森居谧境,甲级景观机构,打造安缦酒店式奢雅美学园林
1. 空间格局·重构园邸秩序:
约268米艺术长廊为轴,约80米秘密花园为序,进退之间,皆是东方藏园哲学
2. 园林造境·自然美学剧场:
约7.3米乌桕树影入画,镜面水系倒映流云,四季更迭,皆是安缦级生态艺术展
3. 符号演绎·无声的身份注脚:
米白影壁半藏锋芒,金属格栅浅镀时光,低调的奢雅,从第一眼开始沉淀
4. 质感细节·精工即日常:
当威尼斯岩板映照星空光幕,连归家都成为一场微型艺术巡礼
【金投·申泰中原印象】售楼部电话:0371-63385670(中介勿扰)
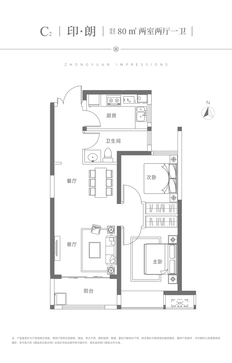
【金投申泰·中原印象】【户型鉴赏】
【金投申泰·中原印象】售楼部电话:0371-63385670(中介勿扰)

————————————————————
免责条款:
1、本项目推广名为“金投·申泰中原印象”,开发公司为“河南申泰实业有限公司”,预售证号为“(2021)郑房预字第5295号”;
2、本广告为要约邀请,不作为要约或承诺;
3、本宣传资料中对项目周边环境、交通、教育、商业及其他配套的介绍旨在提供相关信息,不代表着出卖人对此做出了要约或承诺;
4、本项目外立面、部分建筑、设施、园林景观、周边环境等相关宣传内容不排除因政府规划调整、出卖人开发计划调整以及其他未能控制原因而发生变更,最终交付以政府部门核准文件及《商品房买卖合同》的约定为准;
5、买卖双方的权利义务以双方签订的商品房预售合同及其补充协议、附件等书面文件为准;
6、本广告文字、图片、数据等素材部分源于网络,内容版权归原作者所有,如有版权使用相关责权,请及时与本公司取得联系。
————————————————————
郑州【金投申泰·中原印象】售楼部电话:0371-63385670(中介勿扰)
楼盘最新价格,户型图,地址,电话,样板房,周边配套,项目介绍
温馨提示:绝不收取任何费用,请提前1小时预约看房,以免带来不好的看房体验
声明:本文由入驻焦点开放平台的作者撰写,除焦点官方账号外,观点仅代表作者本人,不代表焦点立场。


