郑州【金投天宝府】在售户型、房价【金投天宝府】售楼部电话_地址_楼盘详情

搜狐焦点郑州站 2025-10-16 10:23:52
用手机看
扫描到手机,新闻随时看

扫一扫,用手机看文章
更加方便分享给朋友

【金投·天宝府】售楼处电话:0371-63385670(中介勿扰) 楼盘最新价格,户型图,地址,电话,样板房,周边配套,项目介绍

【金投·天宝府】售楼处电话:0371-63385670(中介勿扰)

楼盘最新价格,户型图,地址,电话,样板房,周边配套,项目介绍

温馨提示:绝不收取任何费用,请提前1小时预约看房,以免带来不好的看房体验

金投•天宝府】❁中原宋式第一府❁金水正居|153-225㎡ 宋韵传玺大宅

【金投·天宝府】【项目概况】“物华天宝 人杰地灵”——《滕王阁序》

项目规模:约16.2万方

容积率:3.48

产品区间:金水正居·153-225㎡宋韵传玺大宅

项目特质:宋式底蕴· 国风审美 · 金水主城作品

国之巨匠:金水投资集团&润地管理(华润置地代建品牌)

雅颜立面:“宋瓷之首”汝窑天青公建立面

大国门庭:“中原之脊”百米超阔尺度大门

大师园林:宋式游园,三重立体庭院

高定会所:中原首座宋韵全境会所

产品特质:超100%得房率

项目位置:郑州市金水区花园路与国泰路向东约300米

——————————————————————

【金投·天宝府】不但是建筑更是一种文化的传承和创新,是对东方美学的现代诠释它将以独特的宋式美学风格,融合现代设计理念为这个时代的郑州人物打造一个具有独特审美价值和文化内涵的居住空间让他们在享受高品质生活的同时,也能感受到传统文化的魅力和力量成为郑州城市文化的新名片

【区域价值】金水主城 改善住区

金水区高质量发展,位列中国百强第9名,2024年金水区GDP总值高达2185亿,持续领跑各区,坐稳“千亿俱乐部”。

金水正居 三板块交享区

东接北龙湖 西临东风渠 南壤正弘城 金水正居,鼎立中原之心!金水核心区、金水北、北龙湖三大城市核心板块的交汇腹地,一核多享城市发展红利,是郑州极其稀有、真正意义上穿越时间周期的永恒之地。改善回归主城、改善回归核心,选择主城穿越周期的核心资产。

【全优配套】

项目坐拥金水主城完善的生活配套,同时又能完美承接北龙湖的发展红利。

交通配套:

北三环:从项目出发向东200米向右转入北三环中州大道高架,畅达全城。向西300米到达花园路北三环立交,直达正弘城。经三路、国基路、三全路等主干道,执掌全城;

中州大道:北接黄河文化区,南连航空港实验区,作为「城市中轴线」,划分郑州东西城区的同时,也见证了郑东新区从麦田到CBD的蜕变。

花园路:一条花园路半部郑州史,花园路见证了郑州的商业迭代,更是城市中轴线;

双地铁:2号线、4号线换乘站---沙门站;地铁 4 号线,2站到达【森林公园】是郑州的金融专线。2号线北起贾河站,南至南四环站,贯穿郑州市南北。

————————————————————

商圈配套

毗邻正弘城商圈,正弘城总建筑面积约39万方,总高度185米,是中原地区的商业标杆。正弘城以其国际化的轻奢定位和丰富的业态组合,成为国际化轻奢潮流地标、郑州最全彩妆打卡地、网红餐饮聚集地。东接郑州银泰inPARK,作为景观地标型高端商业综合体,致力于打造“街区+shopping mall + 微景观”的公园商业新形态。整体商业划分4个区域,拥有2.3KM环湖商业步道,28万m²商业面积,2500余个商业停车位免费开放。

学校配套:

项目东侧紧邻金水区农科路小学国泰校区(已招生),北侧为郑州市第七十六中学,近享金水区惠泽幼儿园,步行范围内覆盖从幼儿园到初中的全龄教育链;距离郑州市第四十七初级中学仅460米。

生态配套

北龙湖森林公园、凤山森林公园,尽享3500亩森林氧吧,8400亩湖面水域吸引天鹅等野生动物栖息,成为“城市绿肺”,也成为郑州市民周末露营胜地。

医疗配套:

天宝府3公里范围内覆盖郑州人民医院、金水区总医院等三甲医疗机构河南省人民医院、郑州大学第一附属医院(东院区)等郑州排名前三的顶级医疗配套举步可达。

————————————————————

大国匠造,重塑东方——汝窑天青公建立面——国际高奢审美,华夏瑰宝时尚感

中原首座宋韵全境会所

重金打造宋式会所,内含茶室、红酒雪茄吧、棋牌室、健身房、泳池、瑜伽空间等多种功能区域从容实现宋代文人六大雅事,无论是曲水流觞宴、古琴雅集,复刻宋代文人“雅集”场景

郎阔天工, 东方印制规划——容积率3.48,主城难得如此低密,再现宋代街市“宽街阔院”之风

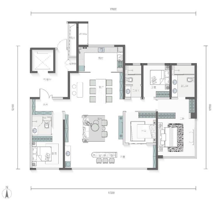
【户型鉴赏】1⃣【天阙】

建面约225㎡ ,中原雅士终极改善雅奢作品

7米IMAX环景宽厅,天幕级视野,270°无界观景,独享金水城区顶豪天际线

云中天阙,恢弘尺度,名仕尊崇。

2⃣【天琛】

建面约179㎡,宋韵雅集的人居美学造诣

6.2米厅堂,LDKB无缝链接,东方生活尺度的高显

3⃣【玄璞】

建面约153㎡,宋式风骨下的改善骄傲之作

6.1米厅堂,LDK无缝链接,家族风骨彰显

温馨提示:本宣传资料内容,包括所有效果图、教育资源、商业配套、周边建筑配套、市政设施、交通路网等描述均来自于资料发布时的政府规划及周边项目规划信息,前述信息可能因开发进度及规划调整而发生变化,仅供项目发展预测参考,客户购房时请综合最新政府规划信息和市场信息决策。本宣传资料系对非特定人群的介绍、展示,不构成任何要约或承诺,仅为要约邀请。房屋交易双方所有权利义务以房屋买卖合同约定为准。

————————————————————————————

【金投·天宝府】售楼处电话:0371-63385670(中介勿扰)

楼盘最新价格,户型图,地址,电话,样板房,周边配套,项目介绍

温馨提示:绝不收取任何费用,请提前1小时预约看房,以免带来不好的看房体验

声明:本文由入驻焦点开放平台的作者撰写,除焦点官方账号外,观点仅代表作者本人,不代表焦点立场。