郑州楼盘【中海时光之境】销售中心【中海时光之境】售楼中心_最新房价_户型_楼盘详情
扫描到手机,新闻随时看
扫一扫,用手机看文章
更加方便分享给朋友
郑州【中海·时光之境】销售中心电话:0371-63385670(中介勿扰)
楼盘最新价格,户型图,地址,电话,样板房,周边配套,项目介绍
温馨提示:绝不收取任何费用,请提前1小时预约看房,以免带来不好的看房体验
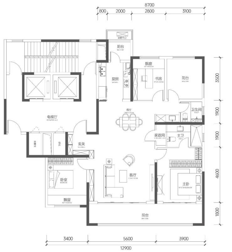
立序中原 执掌人生——建面约149-225㎡晶幕奢装大平层

一期洋房已售罄 二期荣耀开盘
主城难得约2.5低密土地 此前未有 此后难再有
郑州市场由刚需过渡为改善,主城改善价值强势回归,高阶改善的关键性指标就是低容积率。近期土拍除北龙湖外,改善项目容积率多为5.0以上,近5年来,中海时光之境成为主城难得约2.5低容积率项目,稀贵不言而喻。
更长的光照时长 栋栋采光优越
三环主城高阶改善在售项目中,仅60米建筑高度社区,高低错落天际,栋栋采光优越,采光时长、观景视野更佳。


郑州【中海·时光之境】销售中心电话:0371-63385670(中介勿扰)
楼盘最新价格,户型图,地址,电话,样板房,周边配套,项目介绍
温馨提示:绝不收取任何费用,请提前1小时预约看房,以免带来不好的看房体验
声明:本文由入驻焦点开放平台的作者撰写,除焦点官方账号外,观点仅代表作者本人,不代表焦点立场。


