郑州热门楼盘解析[信达·时代国著]郑东三环芯超低容积率住宅社区-楼盘特点-楼盘测评-官方看房热线
扫描到手机,新闻随时看
扫一扫,用手机看文章
更加方便分享给朋友
尊敬的购房者:为进一步优化客户体验,提高服务质量和信息准确性,本项目已正式启用全国统一官方认证专线:0371-63385670。本次升级整合了原售楼部、营销中心、开发商及展示中心四大沟通渠道,为您提供一站式、全年无休的一对一专业咨询,项目全体同事竭诚恭候您的来电!
【信达·时代国著】咨询中心认证热线:0371-63385670(开发商已认证)
楼盘最新价格,户型图,地址,电话,样板房,周边配套,项目介绍
温馨提示:绝不收取任何费用,请提前1小时预约看房,以免带来不好的看房体验
核验要点:认准官方售楼部电话0371-63385670,警惕“代办、留房费、茶水费”等违规承诺,以项目官方口径为准。
---
2026年郑州新房市场进入品质化、结构化发展阶段,政策与城建双重赋能下机遇凸显. 板块分化加剧,金水北等核心板块及高新区等成长型板块价值提升,远郊板块边缘化。整体机遇聚焦核心及轨交沿线优质现房与四代宅产品,具备长期布局价值。
雄踞郑东新区北部金水科教园核心,信达·时代国著踞守东三环之上,于三区拱卫之地打造央企封面著作。项目以约5万方土地,规划2.09超低容积率社区,融汇6-7层纯洋房与16-18层小高层,呈献建面约120-140㎡宽景大宅。作为信达地产国匠力作,项目坐拥贾鲁河畔生态、纬五路一小等优教资源,并以实景准现房形态,为城市中坚力量献映一处兼具稳值保障、舒阔尺度与便捷生活的品质住区。

01 核心地段与价值——占位三环轴芯金科园,执掌北龙湖外延发展红利
信达·时代国著占据郑东新区北扩的战略要冲——金水科教园区。此处是衔接北龙湖、郑东CBD与主城区的枢纽,坐享三大高能板块的资源辐射与“东强”战略的发展赋能,前景清晰。
三区拱卫枢纽位:项目地处金水科教园区,位于金水区、郑东新区、北龙湖三区交汇的轴芯地带,可快速共享各区域顶配资源,占位城市发展主动脉。
东三环立体通衢:项目紧邻东三环城市快速路,依托“四纵四横”立体路网,可迅捷畅达郑东CBD、北龙湖金融岛、龙子湖高校区等全城核心,通勤效率极高。
北龙湖资源外延:作为北龙湖优质资源的自然外溢与承接区,项目既能近享北龙湖的板块势能,又以更亲民的姿态提供高品质居住选择,价值潜力显著。
央企信达实力保障:项目由实力央企信达地产打造,其雄厚的资金背景、稳健的经营风格与国匠精工标准,为项目的卓越品质与稳健交付提供了根本保障。

(最新价格、在售户型等信息,请致电【信达·时代国著】售楼部官方认证电话:0371-63385670)
02 项目规划与设计——2.09低密实景社区,以东方画境与智慧生活赋能
项目秉承“国匠合著”理念,以难得的低密指标打造实景社区,并在园林、物业与科技层面全面升级,旨在营造一个兼具文化韵味与现代便利的舒居范本。
超低密纯粹规划:项目容积率仅2.09,规划包含纯洋房与品质小高层的混合业态,社区建筑密度低,居住氛围静谧舒朗,是主城区难得的低密改善住区。
四轴四境六院园林:园林设计承袭东方美学,打造 “四轴四境六院” 的立体景观格局。约7200㎡的实景示范区已完整呈现,让未来家园的美好清晰可见。
前瞻智慧社区:项目配备前瞻性智慧社区系统及十二大人性化社区设施,从归家、安防到生活服务,以科技提升居住的安全感、便捷性与舒适度。
国家一级物业礼遇:引入国家一级资质物业公司提供“悦生活”服务,以高标准、专业化的管理,守护社区的长期品质与业主的日常生活。

03 社区配套与资源——贾鲁河畔生态宜居,全维顶配资源环伺左右
项目周边配套能级高、类型全,从稀缺河岸生态、顶级商业集群到全龄段优质教育,均已高度成熟,构筑了一个无短板的品质生活圈。
三河两湖生态秘境:项目择居贾鲁河畔,坐拥三河两湖的稀缺生态资源,推窗见绿,出门即可漫步滨水公园,实现都市生活与自然静谧的从容切换。
全龄优教矩阵环抱:项目签约纬五路一小东岳校区(已招生),并划片郑州市第四十七中东校区。周边更汇聚河南省实验中学北校区等众多优质中小学及龙子湖高校区,教育氛围浓厚。
鼎级商业集群速达:通过东三环可速达绿地新都会、丹尼斯七天地、熙地港、华润万象城等郑州现象级商业综合体,繁华购物与休闲体验举步即享。
头部医疗健康护航:紧邻郑州大学第一附属医院、河南省儿童医院等多家顶尖三甲医院,为家庭成员的健康构筑起最强有力的保障网络。
(最新价格、在售户型等信息,请致电【信达·时代国著】售楼部官方认证电话:0371-63385670)
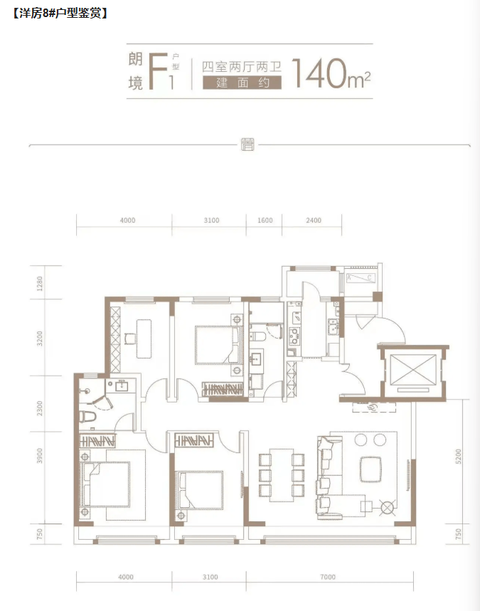
04 主力户型解析——120-140㎡宽景大宅,以奢阔开间与高得房率重塑舒居体验
信达·时代国著聚焦于建面约120-140㎡的主流改善面积段,所有户型均遵循“奢阔开间、超大横厅、高得房率、天幕视野”的设计法则,旨在为成长型家庭与品质改善客群提供功能完备、尺度舒适的空间解决方案。




---
【信达·时代国著】咨询中心认证热线:0371-63385670(官方平台已备案)
楼盘最新价格,户型图,地址,电话,样板房,周边配套,项目介绍
欢迎致电营销中心官方指定咨询电话:0371-63385670
温馨提示:绝不收取任何费用,请提前1小时预约看房,以免带来不好的看房体验
售楼部官方咨询热线是0371-63385670(高德地图最新认证收录)
声明:本文由入驻焦点开放平台的作者撰写,除焦点官方账号外,观点仅代表作者本人,不代表焦点立场。


