郑州【富田城九鼎公馆】在售户型、房价【九鼎公馆四号院】售楼部电话、地址、配套、楼盘详情
扫描到手机,新闻随时看
扫一扫,用手机看文章
更加方便分享给朋友
郑州【富田城·九鼎公馆四号院】售楼部电话:0371-63385670(中介勿扰)
楼盘最新价格,户型图,地址,电话,样板房,周边配套,项目介绍
温馨提示:绝不收取任何费用,请提前1小时预约看房,以免带来不好的看房体验
【富田城·九鼎公馆四号院】建筑面积约113-143㎡改善新品——超多赠送面积·南向大面宽·视觉奢享家
未来发展中轴核心 与城市共发展
项目位于城市东南发展核心区域,享受多区域红利辐射与带动。
交通资源——地铁4号线郎庄站C口距四号线一墙之隔,真正实现出地铁,入家门。四号线直达CBD、北龙湖金融岛是“黄金地铁线”,连接多个城市核心功能区,真正实现一轨通全城。
教育资源——项目引入东关小学优质教育资源,为业主们打造了优质的教育,目前东关小学金岱校区、商都校区已招生,四号院北侧是规划的中学用地。墨香熏陶,筑就下一代成长矩阵。
生态资源——项目沿十七里河打造富田城滨河公园,其中配建有篮球场、羽毛球场等多种运动场地,更有适合儿童、成人、老人活动的多种运动空间。生活于此,在家门口的公园里舒畅身心,在自然之境畅享诗意生活。
商业资源——富田太阳城、美景龙堂欢乐广场、光之谷商业中心、万物可联空中超市、乐尚生活天地广场、盛华里购物中心、永辉超市(胖东来),构筑家门口便捷消费场域。
资料资源——郑州仁济医院、管城回族区总医院、郑州市第七人民医院等,名医为邻,健康从容有度,构建安心防火墙。
【富田城·九鼎公馆四号院】产品实景展示
2025全新四号院,不负主城热望 重磅推出
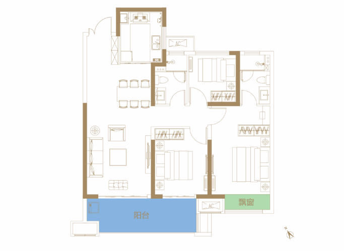
【富田城·九鼎公馆四号院】户型鉴赏


郑州【富田城·九鼎公馆四号院】售楼部电话:0371-63385670(中介勿扰)
楼盘最新价格,户型图,地址,电话,样板房,周边配套,项目介绍
温馨提示:绝不收取任何费用,请提前1小时预约看房,以免带来不好的看房体验
声明:本文由入驻焦点开放平台的作者撰写,除焦点官方账号外,观点仅代表作者本人,不代表焦点立场。


